リタイヤした平凡な図面屋です。仕事から解放されて日々のんびり気楽に暮らしてます。そんな奴が好き勝手書いてます!

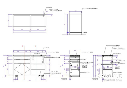
| ■サイズ | ■仕様 | |
| W4820×D600×H2100 | 本体:木工化粧板仕上げ フレーム:50×50 SUS HL角パイプ組み 幕板:リブ材ラッカー塗装仕上げ | |
| ■備考 【SF_ 】棚什器の略語 *業態: | ||

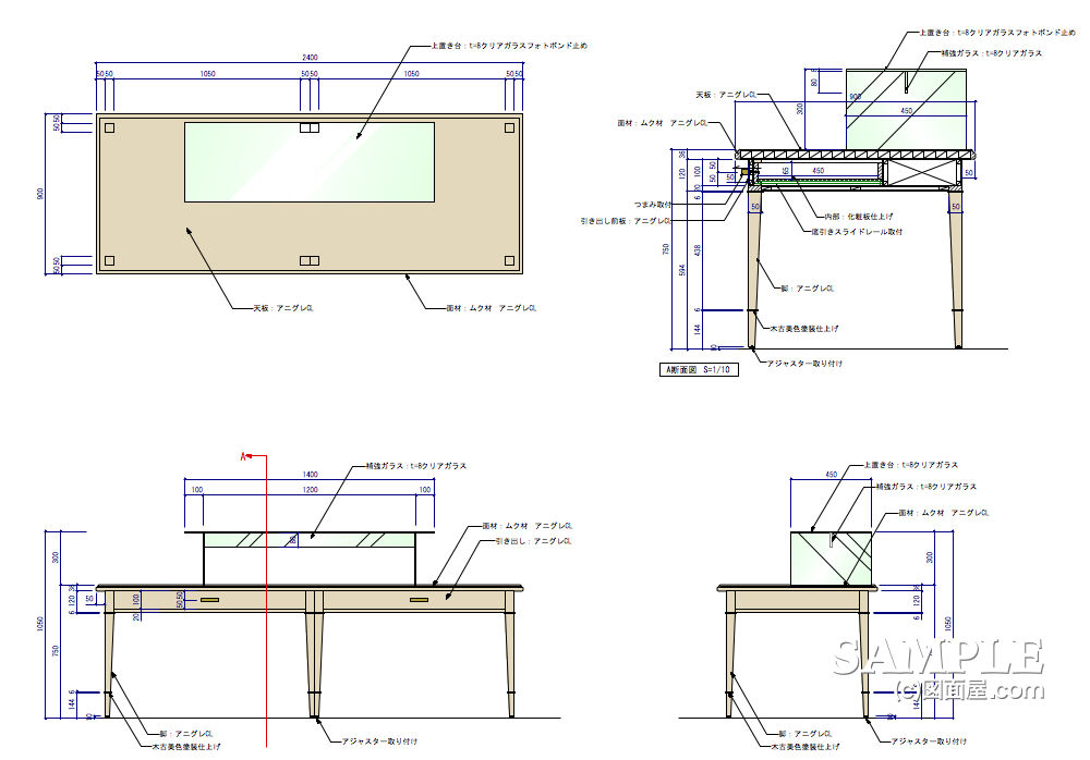
| ■サイズ | ■仕様 | |
| W300×D25×H2405 図面参照 | フレーム:25×25SUS HL角パイプ組み 背パネル:木工染色CL仕上げ ミラーt=5mmクリアミラー | |
| ■備考 【MP】はミラーパネルの略語です *業態:メンズショップ/?百貨店(2010.12) このミラーパネルに使用している鋼材は下記を参照下さい。 ⇒ 鋼材表【SUS角パイプ】 | ||
【作図解説】
この作図事例は、フレーム組の壁面什器側面に取り付けた脱着式ミラーパネルの姿図と断面図です。
W=300mmという細いタイプのミラーパネルなので、柱巻き什器や壁面什器の両サイドなどに設置されることが多くあります。
脱着構造にしていることで什器の組み替えやレイアウト変更にも柔軟に対応できます。
断面図(次ページ)上部の引っ掛け部分は、単純なコの字チャンネルではなく、丸棒を溶接してズレ止めと強度を確保しています。
壁面什器の角パイプ形状に合わせ、丸棒と角パイプを一体で溶接している点がポイントです。
それでは続きをどうぞ!
応援、宜しくお願いします!
↓ ↓ ↓![]()
デザインランキング![]()
にほんブログ村

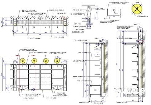
| ■サイズ | ■仕様 | |
| W4100×D600×H2100 図面参照 | ボーダー・電飾サインベース:木工化粧板仕上げ バック面:スリアクリドット柄抜き 電飾サイン本体:φ400アクリル樹脂 盤面:乳半アクリ | |
| ■備考 *業態:婦人下着/ブラ・ショーツ壁面什器『pied a' pied』(2001.03) WFは壁面造作什器の略語 | ||

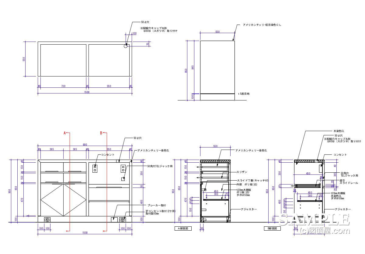
| ■サイズ | ■仕様 | |
| W1270×D920×H900 図面参照 | 本体:アメリカンチェリー柾目染色CL仕上げ 内部:化粧板仕上げ(白) | |
| ■備考 【SCT】はサービスカウンターの略語です | ||

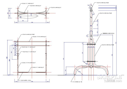
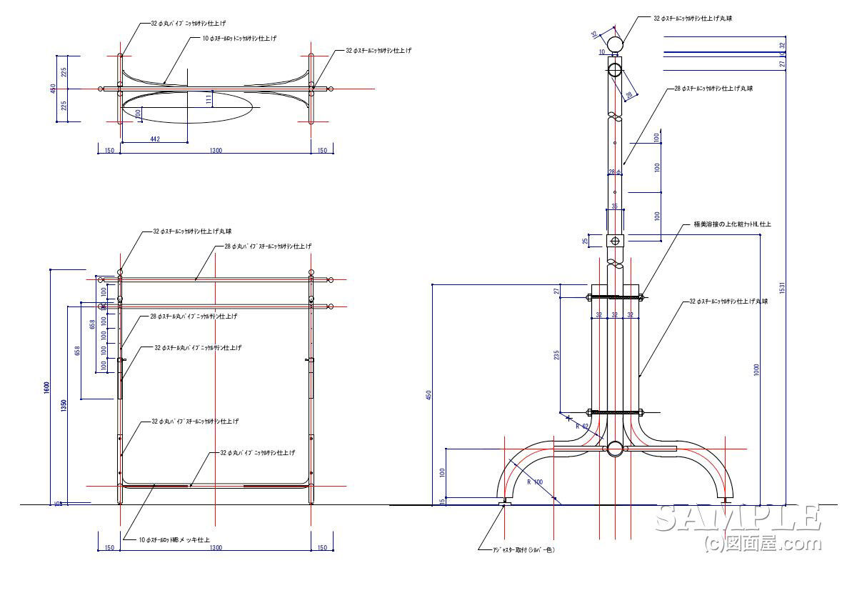
| ■サイズ | ■仕様 | |
| W1600×D450×H1350〜1600 図面参照 | 本体:スチール丸パイプニッケルサテン仕上げ | |
| ■備考 ★SHLはシングルハンガーラックの略語です。 (バーナリーブラック/2007) | ||
この作図事例は、レディースのカジュアルショップを設計した際に製作したシングルハンガーラックです。
店舗中央のディスプレイ用として設置されたもので、衣類を掛けるだけでなく、空間のアクセントとしても機能するようデザインされています。
一般的なシングルハンガーよりも太めのφ32mmスチールパイプを採用しています。
これだけで全体の存在感が増し、什器単体でも十分に主張するデザインになっています。
脚部には同径の丸パイプを曲げ加工して抱き合わせ、安定性を高めていますが、パイプ同士の接点が限られているため、構造的にはボルト固定が必要になりました。
その結果、ディテールとしてやや“重たく”見える部分もありますが、実際の仕上がりは意外にバランスが取れています。
それでは続きをどうぞ!