リタイヤした平凡な図面屋です。仕事から解放されて日々のんびり気楽に暮らしてます。そんな奴が好き勝手書いてます!

【所感】
商業施設や路面店でよく見かける、楕円形の吊り行灯サイン。単純そうに見えても、スペースの制限や施工環境に応じて設計は少しずつ変わってくる。今回はその一例です。
【作図解説】
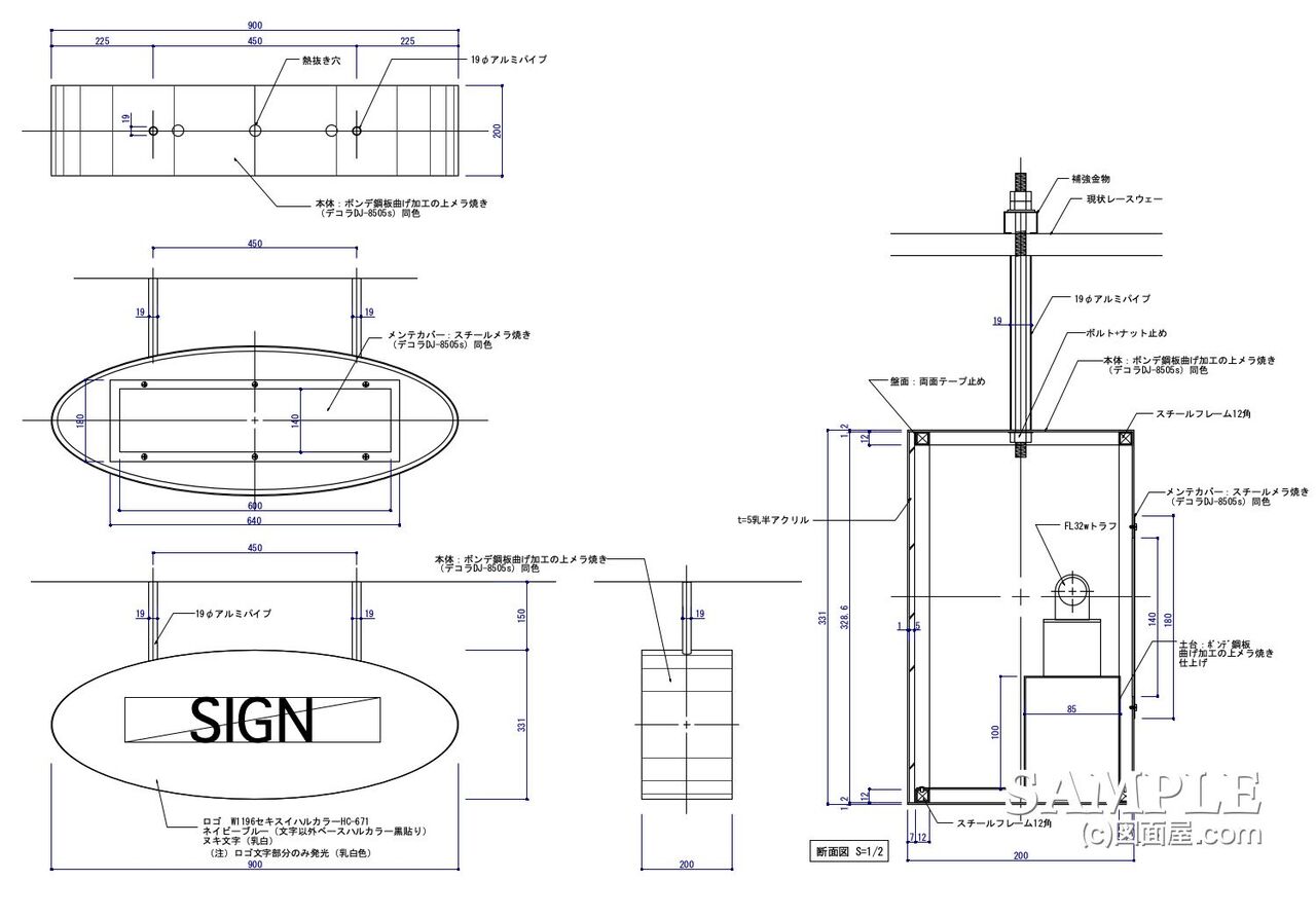
この図面は、ショップファサードに取り付けられた吊り行灯サインの姿図と断面図を描いたものです。表示面は乳白アクリル、内部には直管型の蛍光灯トラフを設置。
トラフはボンデ鋼板の曲げ加工で作られたベースに固定されています。背面はメンテナンス用の鋼板プレートをビスで留める構造。
吊元はφ19のアルミパイプを使用し、天井側へナット止めで確実に固定されています。店舗の奥行きが狭い場合には、今回のように片面表示の仕様でも充分な視認性を確保できます。
応援、宜しくお願いします!
↓ ↓ ↓![]()
デザインランキング
【作図ポイント】
・楕円形表示面の寸法と吊り位置が明快に示されている
・内部のトラフ設置ベースが自立構造になっている
・背面プレートの構造が簡素で、メンテナンス性は必要最低限
・片面表示を前提としたサイン構成
・断面図から、鋼板フレームや支持構造がしっかり読み取れる
【まとめ】
ありふれたサインでも、図面を見れば設計者の判断や意図が表れている。特にファサードは“見せる面”と“裏の構造”のバランスが重要で、制限された空間でいかに情報を伝えるかが問われるポイント。
この事例では、片面表示・簡素なメンテナンス構造・自立型ベースなど、現場事情に即した割り切りがなされている。
こうした工夫を読み取って描くのも、図面屋としての腕の見せどころだと思います。
【サイズ・仕様】
| 項目 | 内容 |
|---|---|
| 全体サイズ | W900 × H450 × D200 mm |
| 表示面 | t=5乳白アクリル+カッティングシート(SIGNロゴ) |
| 本体構造 | ボンデ鋼板曲げ加工+メンテナンスプレート(片面仕様) |
| 照明器具 | FL20型トラフ(スチール製ベースに設置) |
| フレーム | スチールLアングル(12角) |
| 吊り支持部材 | φ19アルミパイプ(天井側ナット・レースウェー固定) |
| メンテアクセス | 背面ビス固定プレート(ショップ内側から開閉可) |