リタイヤした平凡な図面屋です。仕事から解放されて日々のんびり気楽に暮らしてます。そんな奴が好き勝手書いてます!

| ■Data | ||
| ■サイズ | ■仕様 | |
| 1200×450×1050 | 金物部:SUS 鏡面角パイプ 25.4×25.4 mm 棚ガラス:t=10mm | |
| ■備考 | ||

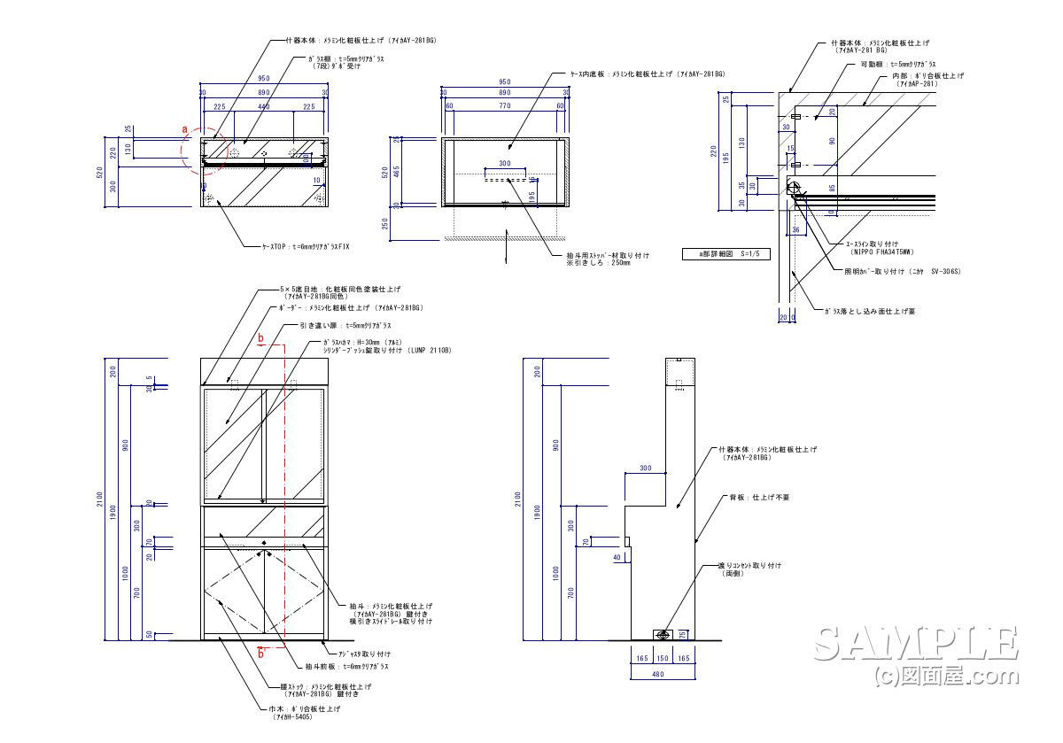
| ■サイズ | ■仕様 | |
| W950×D520×H2100 図面参照 | 本体:木工化粧板仕上げ ショーケース:t=6mmクリアガラス | |
| ■備考 作図日:2007.08 業態:ZIPPO梅田ロフト店 | ||
【作図解説】
この作図事例は、アクセサリーや腕時計など小物雑貨向けの壁面ショーケースです。
上部は奥行220mmの薄型ケースで、可動棚の奥行も十分に確保しています。扉は観音開きも可能ですが、来客動線を考えると引き違い戸が適しています。
照明はダウンライトに加えて戸裏側にも器具を設置し、下段の照度不足を補っています。器具が見えないよう側板に掘り込み処理をしています。
下部ショーケースは上部より手前に張り出し、商品確認のしやすさと視認性を高めています。内部の引出しトレーは前板ガラス・鍵・レールの取り合いに注意し、十分な見付寸法を確保しています。
それでは、続きを!
応援よろしくお願いします
↓ ↓ ↓![]()
デザインランキング

| ■サイズ | ■仕様 | |
| W3112.2×D600×H2400 | 本体:化粧板仕上げ | |
| ■備考 作図日:2011.01 業態:大型メガネショップ 【STO_000】は「storage」収納の略語 | ||
【作図解説】
今回の作図事例は、眼鏡ショップのレジバックに設置された大容量ストック什器です。
低価格で機能的な眼鏡ショップが一気に普及した時期で、大阪の百貨店への出店に合わせて実施設計を担当した案件でした。
規模の大きい眼鏡専門店は初めてでしたが、什器図面だけでも実務的に学ぶ点が多かった物件です。
ストックの容量は売場規模から考えて妥当で、眼鏡という小さな商品の割に来客が多いジャンルだけに、在庫量を読み誤らないようこのサイズになっています。
また、レジバック側には手洗い用かクリーニング用かは記憶が曖昧ですが、シンクも組み込まれています。
扉はすべて引き違いにしており、レジとストックの間の狭い通路を最大限に有効活用するための仕様です。什器本体は上下に分割して搬入し、現場でボルト+ナット固定して一体化させる構造になっています。
それでは、続きを!
応援よろしくお願いします
↓ ↓ ↓![]()
デザインランキング

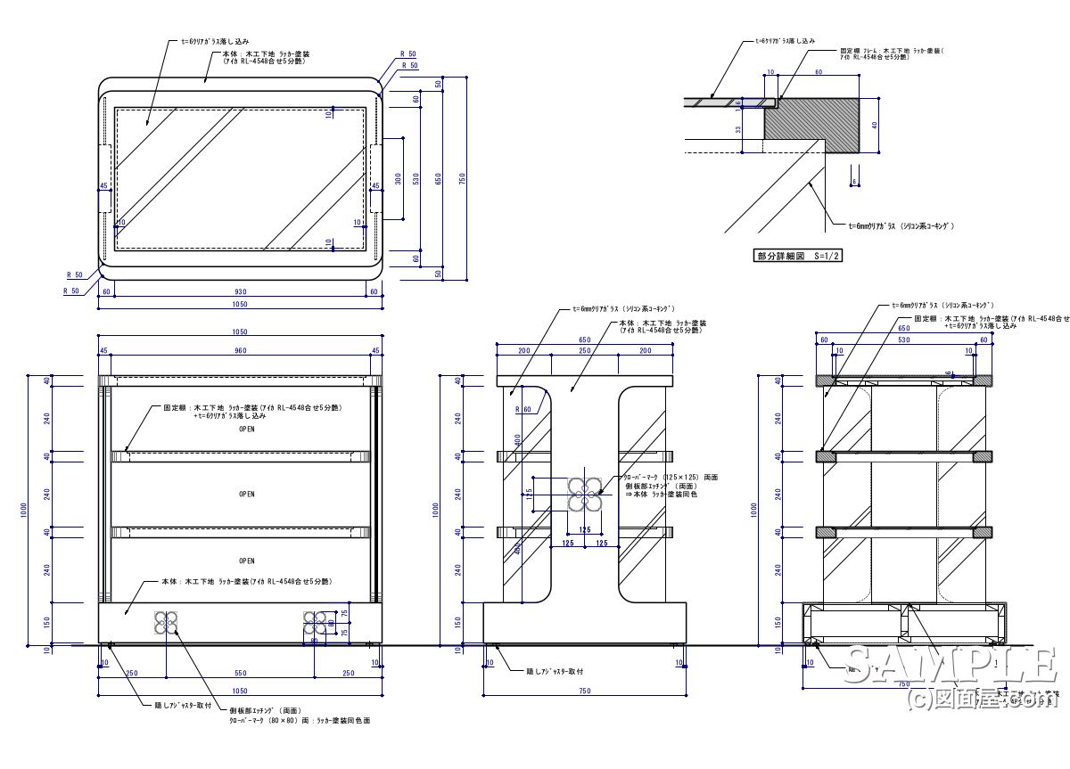
| ■サイズ | ■仕様 | |
| W1050×D750×H1000 図面参照 | 本体:木ラッカー塗装仕上げ 棚板:t=6mmクリアガラス | |
| ■備考 作図日:2009.04 業態:組曲キッズ 【SF_000】は「shelf fixtures」棚什器の略語 | ||
【作図解説】
この作図事例は、子供服売り場向けに設計したオープン棚什器の姿図と断面図である。
両サイドのサイドパネルを部分的に欠き込み、そこへクリアガラスを差し込むことで、フォルムに動きをつけている点が大きな特徴となっている。
ガラスは6mm厚で、棚板への落とし込みや端部の納まりも比較的タイトなため、全体を軽やかに見せつつも、要所の接点では丁寧な設計が求められる。
また、サイドパネルにはエッチング加工されたクローバーマークが施されており、子供売り場らしい柔らかさとショップのイメージ訴求を兼ねている。
それでは、続きを!
応援よろしくお願いします
↓ ↓ ↓![]()
デザインランキング

| ■サイズ | ■仕様 | |
| 書架W4650×D400×H3000 ラダーW540×D551×H3000 図面参照 | 書架:木工化粧板仕上げ ラダー(梯子):スチール角パイプ焼き付け仕上げ | |
| ■備考 作図日:2010.02 業態:インテリアショップ | ||