リタイヤした平凡な図面屋です。仕事から解放されて日々のんびり気楽に暮らしてます。そんな奴が好き勝手書いてます!

| ■サイズ | ■仕様 | |
| W1800×D550×H900 | サイン本体:木工下地化粧合板仕上げ t=8クリアガラス+飛散防止フィルム貼り | |
| ■備考 作図日:2018.11 業態:和菓子店 *【GC_000】はガラスケースの略語 | ||

| ■サイズ | ■仕様 | |
| 900×450×1000 | 木部:化粧板仕上げ タイル:天然石モザイクタイル | |
| ■備考 製作日:2009.05 業態:コスメキャビン | ||
【作図解説】
今回の什器は、百貨店の通路面やエントランス付近でよく見かける、いわゆるオープン型のプレゼンテーションテーブル(ディスプレー什器)をコスメ用に落とし込んだタイプです。
上部には透明ガラスの上置き台を設け、新製品を目線に入りやすい高さでディスプレーできる構造としています。
天板の小口には天然のモザイクタイル貼りを採用し、コスメらしい清潔感や品の良さを表現している点も大きな特徴。
下部は引き出しとストックスペースを兼ねる収納で、お客様対応に必要な化粧小物やツールをすぐ取り出せるように設計されています。
サイズ感はコンパクトながら、什器としての役割はしっかり満たしている什器だと感じます。
それでは、続きをご覧あれ!
応援よろしくお願いします
↓ ↓ ↓![]()
デザインランキング

| ■サイズ | ■仕様 | |
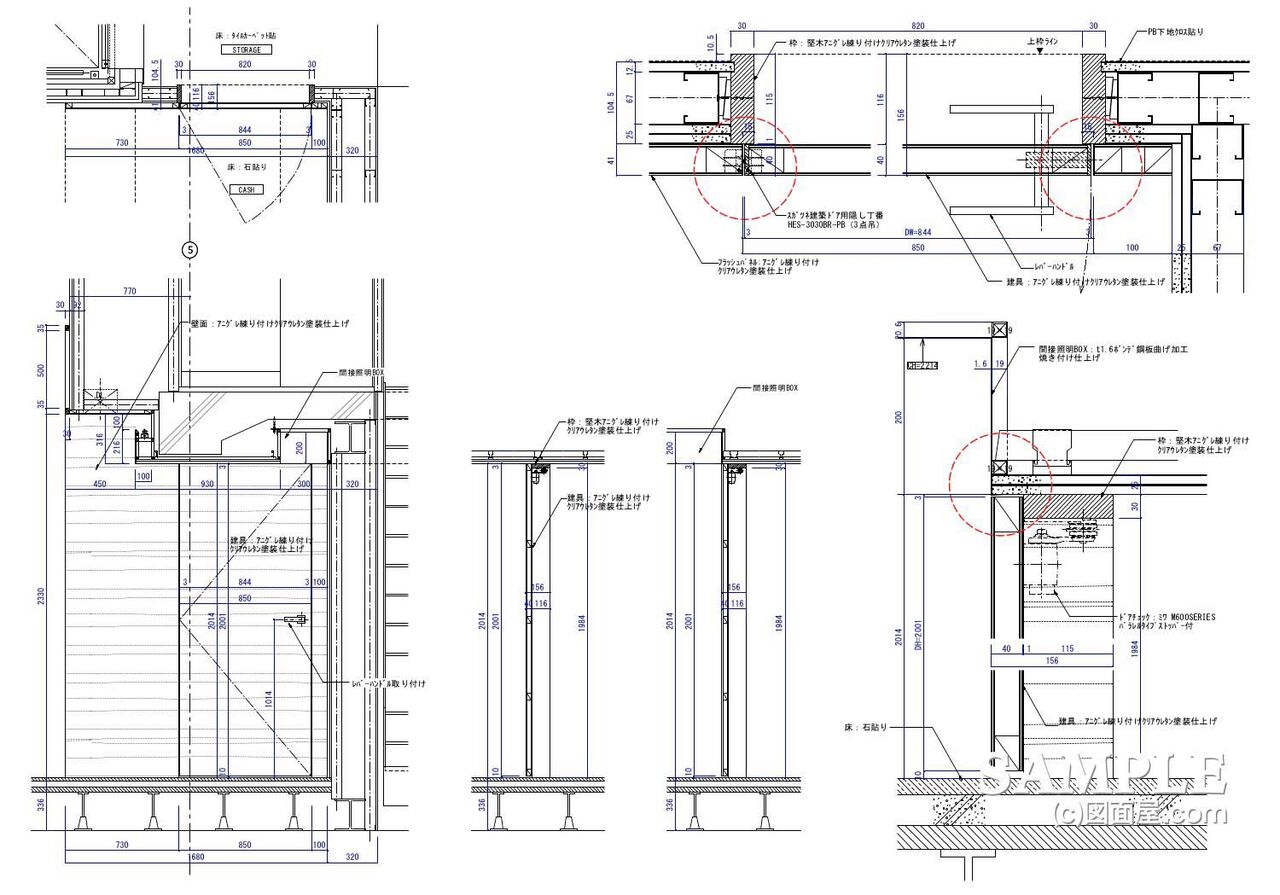
| W844×D40×H2001 図面参照 | 枠:アニグレ練り付けクリアウレタン塗装仕上げ 建具:アニグレ練り付けクリアウレタン塗装仕上げ | |
| ■備考 作図日:不明 | ||

| ■Data | ||
| ■サイズ | ■仕様 | |
| W×D×H 図面参照 | 建具本体:木下地t=5mmクリアミラー貼り | |
| ■備考 作図:2013.02 業態:アパレル全般 | ||

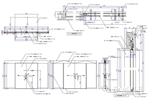
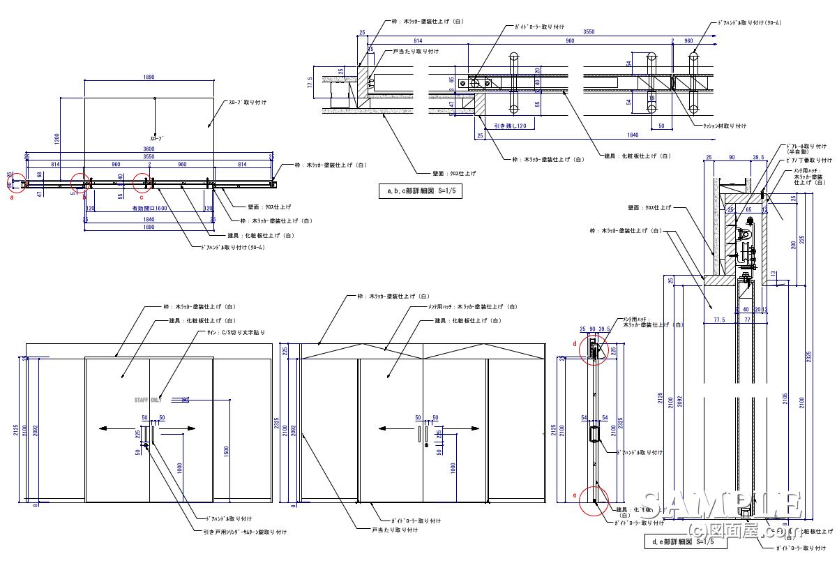
| ■サイズ | ■仕様 | |
| W×D×H 図面参照 | 枠:木ラッカー塗装仕上げ 建具:化粧板仕上げ(白) | |
| ■備考 ★ | ||