リタイヤした平凡な図面屋です。仕事から解放されて日々のんびり気楽に暮らしてます。そんな奴が好き勝手書いてます!

| ■サイズ | ■仕様 | |
| W520×D300×H1200 図面参照 | 本体:スチールニッケルサテン仕上げ サインベース:t=15mmMDFラッカー塗装仕上げ サイン:t=5mmアクリ切り文字(黒マット) | |
| ■備考 | ||
【作図解説】
この作図事例は、ショップフロントに設置するスタンドサインの姿図と断面図をまとめたものです。
スタンドサインは既製品やメーカー支給品が使われることも多いアイテムですが、本事例では什器全体のマニュアル化が進んでいたため、サインスタンドも備品のひとつとしてオリジナルで製作しています。
マネキンや傾斜ハンガーと並べて配置される前提で、主張しすぎず、かつ確実に視線を拾うサイズ感と構成を意識した設計になっています。
姿図では全体のプロポーションと設置時の見え方を、断面図ではサインプレートの傾斜角度やフレーム構成、支柱との取り合いが確認できる内容です。
それでは続きをご覧ください!
応援よろしくお願いします
↓ ↓ ↓![]()
デザインランキング

| ■サイズ | ■仕様 | |
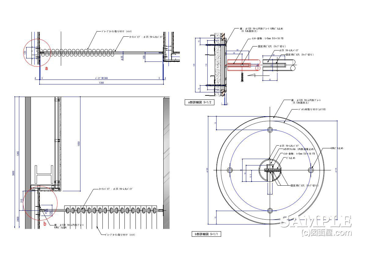
| W1380×D25×H25 図面参照 | カーテンパイプ:φ25クロームパイプ 座:t=3mm×φ120クローム円形プレート+t=5mmFB溶接止め | |
| ■備考 作図日:2013.03.26 【FR_】fitting roomの略語 フィッティングルーム全般 | ||
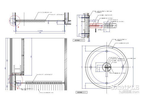
【作図解説】
今回の作図事例は、FRやストック入口などでよく使われるカーテンパイプの詳細図です。
本来であれば、壁面仕上げ前に下地材であるLGSへインロー金物を溶接し、確実に固定するのが基本的な納まりになります。
しかし本事例では、竣工後に追加工事として設置する必要があったため、左右の壁面に円形の座を取り付ける工法を採用しています。
店舗工事では、このように後付けでの対応を求められるケースが少なくありません。そうした場面での実務的な参考例として整理した作図です。
また、両側の壁面にはミラー仕上げが施されており、その取り合いもこの図面の重要なポイントになっています。
それでは続きをご覧ください!
応援よろしくお願いします
↓ ↓ ↓![]()
デザインランキング

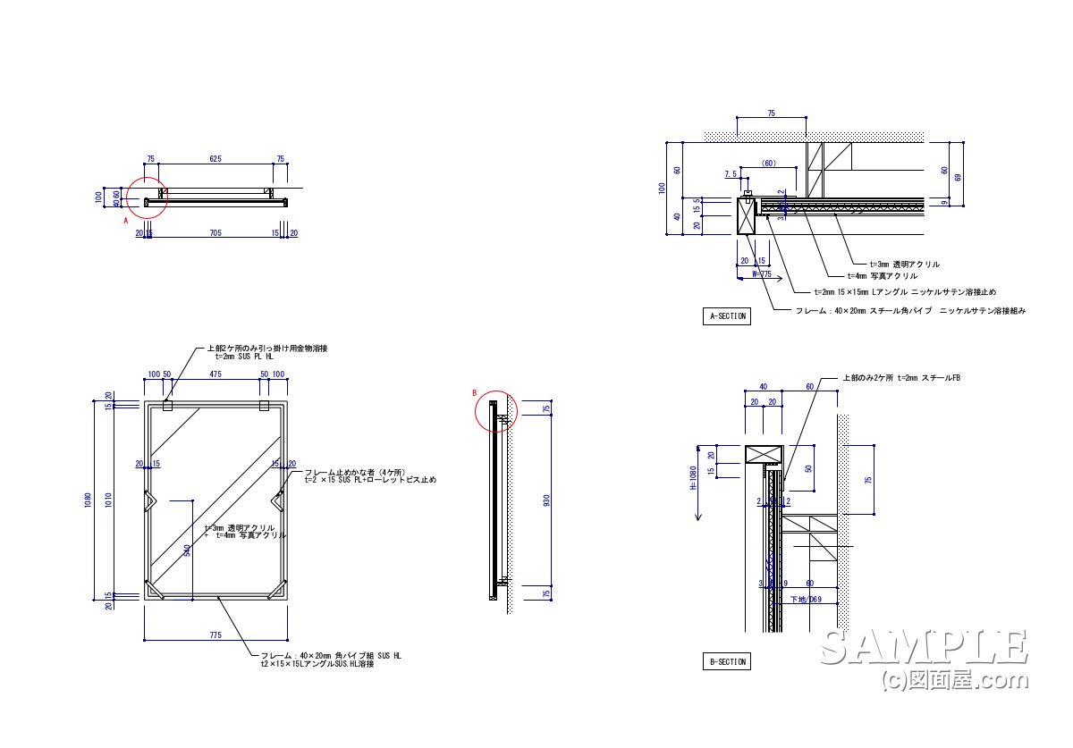
| ■サイズ | ■仕様 | |
| W775×D90×H1080 図面参照 | フレーム:20×40スチール角パイプニッケルサテン仕上げ 止め金:SUS プレート+ローレットイス止め 盤面:t=3mmクリアアクリ+t=4mmフォトアクリ | |
| ■備考 作図日:2002.02.21 業態:メンズアパレル(ダーバン) | ||
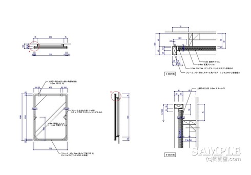
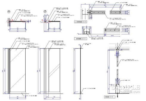
【作図解説】
この作図事例は、ショップ演出用のビジュアル・サインパネルの姿図および断面図です。
既製品のビジュアル・サインパネルが多く使われる中で、本事例は空間全体の環境意匠の一部として計画されたパネルといえます。
フレーム構成自体は40mm×20mmのスチール角パイプによる四方フレームで、構造としてはごく一般的なものですが、盤面の交換やメンテナンスを前提とした納まりになっている点が特徴です。
立面図は裏面側から見た構成を示しており、やや分かりにくい表現になっていますが、実際の施工やメンテナンス手順を意識した図面構成としています。
なお、実際の裏面には化粧としてベニヤ下地が取り付く想定となっています。
それでは続きをご覧ください!
応援よろしくお願いします
↓ ↓ ↓![]()
デザインランキング

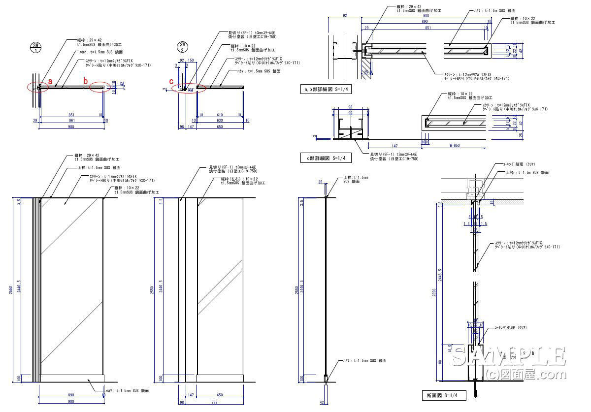
| ■サイズ | ■仕様 | |
| W900×D42×H2550 W650×D42×H2550 図面参照 | サッシュ:各フレーム SUS鏡面仕上げ スクリーン:t=12mmクリアガラス+タペシート貼り | |
| ■備考 作図日:2007.11.27 一般環境造作図 | ||

| ■Data NO. sign_0011 | ||
| ■サイズ | ■仕様 | |
| w3000×H100×D300 | 本体:木下地ラッカー塗装仕上げ | |
| ■備考 作図日:不明 コーナーサイン:環境設計 | ||