リタイヤした平凡な図面屋です。仕事から解放されて日々のんびり気楽に暮らしてます。そんな奴が好き勝手書いてます!

| ■サイズ | ■仕様 | |
| W2830×D500×H2500 図面参照 | 本体:木工ウレタン塗装仕上げ(こげ茶) 側板:木工下地スタッコ仕上げ サインボーダー:化粧板仕上げ 壁面:PB下地スタッコ仕上げ | |
| ■備考 作図日:不明 業態:アパレル全般 | ||

| ■サイズ | ■仕様 | |
| W2700×D500×H2750 図面参照 | 壁面:木板目地貼りの上ウレタン塗装仕上げ 固定棚:木工下地ウレタン塗装仕上げ 持ち出しパイプ:スチール角パイプニッケルメッキ仕上げ | |
| ■備考 作図日:2007.01.12 業態:レディースアパレル(FRAGILE ) | ||
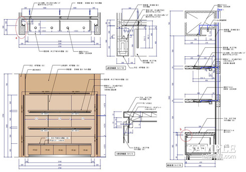
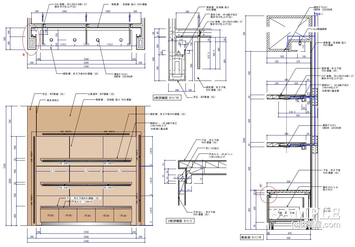
【作図解説】
本事例は、レディースアパレルショップの多店舗展開を想定したマニュアル図の一部として作成した、ニッチ壁面用の固定棚詳細図です。
インローパイプを用いた構成ですが、今回はパイプ自体を意匠として見せる使い方としています。
ニッチ上部の間接照明部はPB下地となるため、L型見切り材で補強し、PB小口は3mm厚のフラットバーで押さえています(a部詳細参照)。
固定棚は壁面から50mm離して設置し、棚を浮かせたような見え方としています。差し込み寸法は318.5mmで整理しており、特に難しい納まりではありませんが、裏面小口の仕上げは必須です。
棚下には薄型ダウンライトを4灯、棚奥には演出用としてシームレスライトを設置しています。
演出照明は正面から器具が見えないようカバー付きとし、ニッチ壁面の間接照明と合わせて、背面のウレタン塗装仕上げパネルを柔らかく照らす構成としています。
今回は底目地加工としていますが、目地棒仕上げに変更することで、より高級感のある演出も可能で、引き出し式のストックボックスについては、手じゃくり加工部と戸当たり寸法をb部詳細図にて示しています。
それでは続きをご覧ください!
応援よろしくお願いします
↓ ↓ ↓![]()
デザインランキング

| ■サイズ | ■仕様 | |
| W2670×D1280×H2950 図面参照 | 柱巻き:LGS+PB12.5下地AEP塗装(白) 支柱:38φロイヤル スリットパイプ 焼き付け仕上げ | |
| ■備考 作図日:2001.05.15 業態:メンズカジュアル(イクシーズ) 【PF_000】は「Pillar features」の略語 | ||

| ■サイズ | ■仕様 | |
| W2000×D1200×H850 図面参照 | 本体・ステージフレーム:スチールパイプ焼き付け仕上げ TOP:木工下地ボンスエード塗装仕上げ 内照式ステージ側面:t=5乳半アクリ | |
| ■備考 作図日:1999.07.16 業態:メンズ(ダーバン) | ||
【作図解説】
この作図事例は、スチールフレームと内照式ステージを組み合わせたオープンタイプのテーブル什器の姿図です。
什器正面にブランドサインを内照で見せる構成となっており、売り場の中でも視線をしっかり引き付ける役割を担っています。
ワイドは約2000mmと大きく、単体什器としてはかなり存在感のあるサイズ感です。その分、フレームは細めのスチールパイプでまとめ、ボリュームが出過ぎないようバランスが取られています。
本図面は基本設計段階の什器図のため、各部の詳細図までは描かれていませんが、構成や寸法関係から、全体の考え方は十分に読み取れる内容になっています。
それでは続きをご覧ください!
応援よろしくお願いします
↓ ↓ ↓![]()
デザインランキング

| ■サイズ | ■仕様 | |
| W945×D519×H1400 図面参照 | 本体:スチールパイプ焼き付け仕上げ(ゴールド) 側板:t=5乳半アクリル | |
| ■備考 作図日:不明 業態:婦人インナー | ||
【作図解説】
この作図事例は、レディースインナー売り場向けに設計したシステム什器の姿図・各部断面図です。
全体のフォルムは角を立てず、アーチ形状を取り入れることで、インナー売り場らしい柔らかく上品な印象を意識した構成になっています。
フレーム構成自体は一般的なシステム什器と大きく変わりませんが、使用している部材は細径パイプが中心で、全体を軽やかに見せる工夫がされています。
仕上げにはゴールド系カラーを採用しており、レディースインナーやフォーマル系ショップでよく見られる落ち着いた高級感を演出しています。
それでは続きをご覧ください!
応援よろしくお願いします
↓ ↓ ↓![]()
デザインランキング