
最近は、図面初心者の方からのリクエストで、簡単で描きやすい図面事例を投稿してます。
そのほとんどは、単品什器となってます。
我々が呼ぶ、『家具図』って代物です。
今回は、2009年03月に竣工した「コスメキャビン」という売り場で描いた什器群のひとつです。
その格好から見て、
通路に面した(ファサード)辺りにレイアウトしました。
作図は、全然難しくはありません。
じっくり見ていただければ理解出来ますし、この作図を参考にして描いていけば納得出来るはずです。
作図ポイントは、後にお伝えしますがまずはしっかり読み込んで理解するようにしてください。
それでは、
続きをご覧ください!応援、宜しくお願いします!↓ ↓ ↓
デザインランキング
●スポンサードリンク
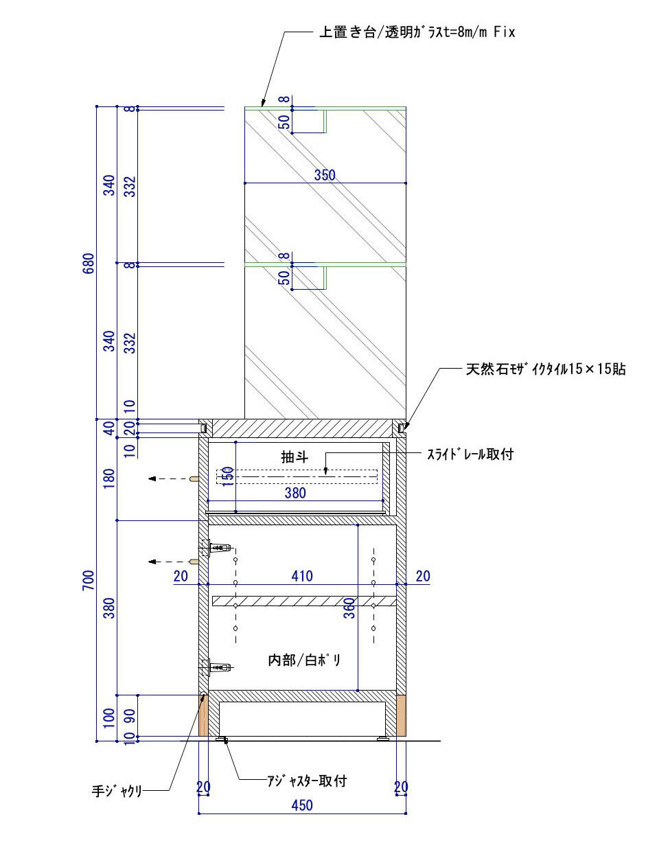
それでは作図ポイントを!読み込んでいただいたので、サイズ及び、仕上についても理解して頂いたと解釈します。
ちなみに、僕のお気に入りは、テーブルにアクセントとして、15mm×15mmのモザイクタイル貼りを施したあたりです。
続けます!
三面図は理解したとして、僕が気になったのはやはり断面詳細図です。
本来は、
断面図については、ハッチング技法も良いのですが、ここはネタ入れをして描いてほしかった!以下参考資料として拡大図を載せておきました。
作図そのものは、しっかり描かれていますので、ちゃんとしたネタ入れをしていれば最高点ですね!
トップガラス棚の補強を入れ、アジャスター取り付けなどなど、気配りは申し分ないです。

最後に、上記の断面図をしっかり理解し、マスターすることが什器図の必須科目です。
そうすれば、この類いの什器は必ず描けます。
頑張ってください!
応援、宜しくお願いします!↓ ↓ ↓
デザインランキング