
■サイズ
| ■仕様 |
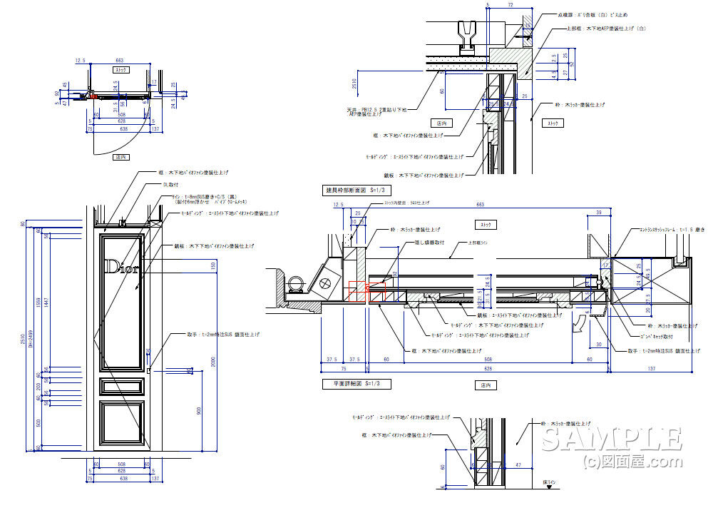
W638×D97×H2510 詳細は図面参照 | 建具枠:木工AEP塗装仕上げ 建具:木工バイオファイン塗装仕上げ |
■備考
|
今回は、
『面材をバランス良く配置したクラシック基調の建具事例の作事例』をご紹介しましょう。しかも、隠し蝶番を使用した建具が多い中でも、この建具の収まりはとても美しいです。
建具枠も見えない状態ですから、上品な高級感あるスーパーブランドでの空間には、まさにぴったしの建具です。京都伊勢丹オープン時で、マニュアルから引き出した建具図です。
まぁ、スーパーブランドということですが、私の場合はそんなことはどうでも良くて、ひたすら間違わずに描いた思い出があります。
ただね、隠し蝶番の取り付けってのは、非常にデリケート棚!なんて考えながら描いてましたね。ですから、図面を描く側もしっかり、納めを考えなければなりません。
それでは、もっと深掘りした内容に入りましょう。
続きをご覧ください!
応援、宜しくお願い致します。 ↓ ↓ ↓
にほんブログ村 
人気ブログランキング
●スポンサードリンク
まず、隠し蝶番を使うことは、建具の厚みによってとても微妙に部材の位置関係が変わります。ですから使用用途などの範囲が限られることが、まれにあります。
今回の場合は、マニュアルの指示内容があったので、なんの疑いもなくしっかり描くように努力しました。まじめですから!
しかし、仮にあなたが、本当に隠し蝶番が良いのかどうかをまず考察し、その用途をしっかり確かめておいたほうが良い場合もあります。
そうでなければ、とんでもないことになります。隠し蝶番って意外と柔い気もするからです。設置する建具の使用頻度を慎重に考えてください。ヤバいときは、平蝶番という選択肢もありますから。ただ、隠し蝶番ってメリットもあるんです。まぁ、これが最優先ですね。それは,見てくれです。隠し蝶番は、その名の通り蝶番が表面から見えない事が最大の利点です。格好良いんです。

但し、取り付けの手間と調整には、多くの時間を費やすことになるので、施工屋さんは大変です。しかし、どうしてもって感じで付けてしまうのですね、これが!
私なら、丈夫で長持ちの平蝶番を私は進めます。だって、この建具観ていると,上品なクラシックな平蝶番が似合いそう!
現状では、ちょっとした高級店では,ほとんどの建具には、この隠し蝶番は、持て囃されているようです。あなたも一度挑戦して描いてみてください。
最後に、より理解を深めて頂くために、断面詳細図の拡大図も添付しておきますね!

応援、宜しくお願い致します。 ↓ ↓ ↓
にほんブログ村 
人気ブログランキング