リタイヤした平凡な図面屋です。仕事から解放されて日々のんびり気楽に暮らしてます。そんな奴が好き勝手書いてます!

| ■サイズ | ■仕様 | |
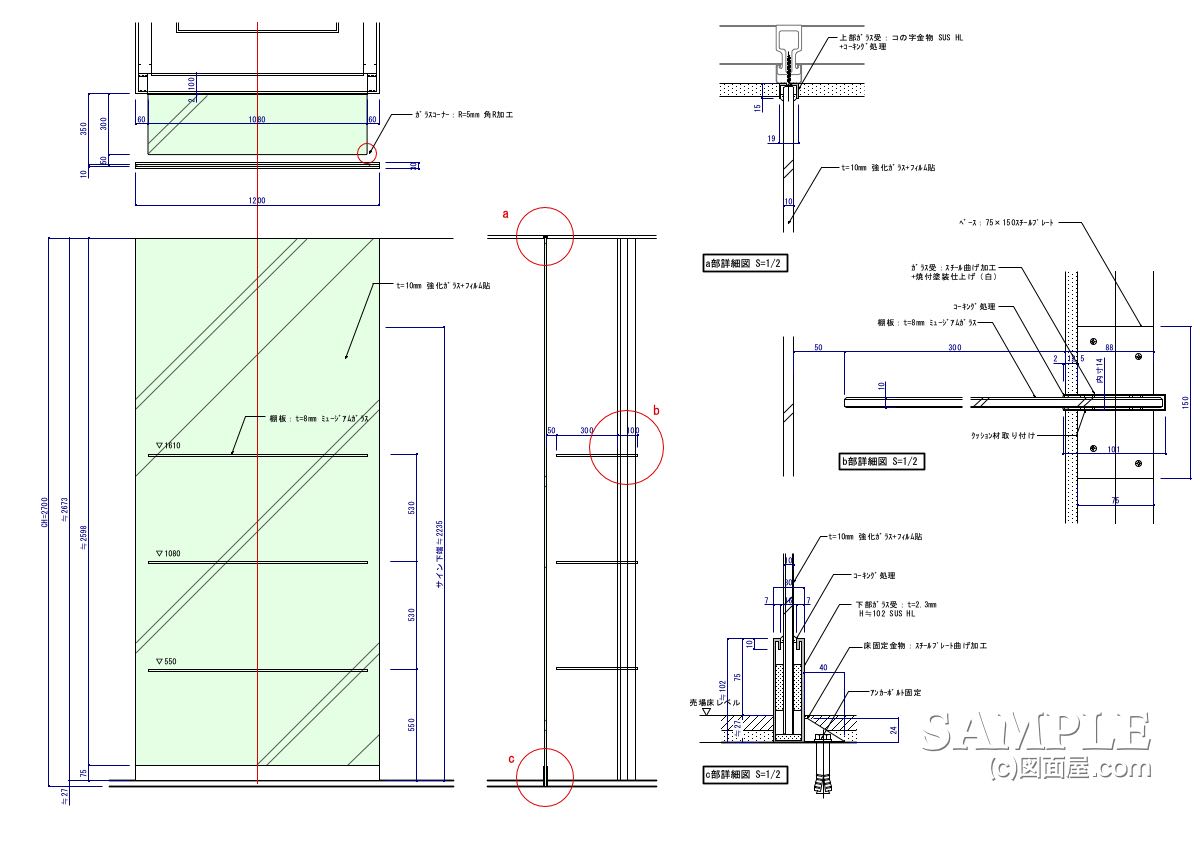
| W1200×D360×H2700 図面参照 | 柱:LGS+PB下地AEP塗装仕上げ スクリーンハカマ:SUS HL曲げ加工 スクリーン:t=10強化ガラス+シート貼り 棚:t=10ミュージアムガラス | |
| ■備考 作図日:2002.07.24 業態:Burberrys BLUE LABEL | ||
【作図解説】
本事例は、柱前にガラススクリーンを立て、その柱面に固定式のガラスディスプレー棚を埋め込んだ構成です。
透明素材を面で使うことで、商品を軽やかに見せつつ、照明効果も素直に拾えるディスプレーになっています。
ガラススクリーンは、天井側をコの字チャンネル、床側をハカマ金物で押さえ、正面から金物が目立ちにくい納まりとしています。
上下で保持するシンプルな構成ですが、ガラスの見え方を損ねないためには、この押さえ方の整理が効いてきます。
柱面のガラス棚は、10mm厚ガラスを受けるため、柱内に奥行きを持たせた受け金物を仕込み、軽量鉄骨下地にプレート固定しています。
やっていること自体は定番ですが、「見せない」ための金物配置と納まりの組み立てが丁寧で、実務的に参考になる図面です。
それでは続きをご覧ください!
応援よろしくお願いします
↓ ↓ ↓![]()
デザインランキン
【作図ポイント】
ガラス棚と金物の取り合いでは、必ずクッション材を挟み、ガラスが金物へ直接接触しないようにします。
ガラスは自重だけでも力がかかるため、当たりが出るとヒビや欠けの原因になります。
ここは、“安全のため”というより、“不具合を出さないための前提条件”と考えた方が早いです。
また、この棚は固定式のため、設置後の高さ調整ができません。ディスプレーする商品のサイズ、視線を集めたい高さ、棚間の抜け感などを事前に想定したうえで寸法を決める必要があります。
固定棚は一発勝負なので、寸法決定の根拠が弱いと、完成後に「使いにくい棚」になります。


【その他・私見】
棚板に使用しているミュージアムガラスは、透明感が高く、商品の色を素直に見せられる素材です。白や淡色、革の質感、金具の反射などが濁りにくく、ディスプレーの“品”を上げてくれます。
ただし、素材が良い分、納まりや図面精度の甘さは誤魔化せません。金物のラインが少し曲がるだけで目立つし、クリアランスが不均一だと一気にチープに見えます。
スッキリ見えるディスプレーほど、裏側の精度が問われる。これは本当にそうで、良い素材を使うほど設計側の覚悟が必要になります。
固定棚は「逃げ」が効かない分、設計判断がそのまま露出します。現場で通る線を引くだけでなく、「この高さで見せる」という意図を持って寸法を切ること。
ここができると、ディスプレーは安定して強くなります。
【まとめ】
ガラススクリーンと柱巻きディスプレー棚を組み合わせた本事例は、意匠を主張する構成ではなく、商品をきれいに見せるための条件を丁寧に積み上げた作図例です。
クッション材の扱い、金物の見え方、固定棚の高さ判断など、完成後に効いてくるポイントが図面の中で整理されています。
ディスプレーは、細部で差が出る。その前提をきちんと踏まえた構成だと思います。
依田和でした!
応援よろしくお願いします
↓ ↓ ↓![]()
デザインランキン