
■サイズ
| ■仕様 |
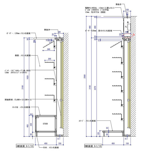
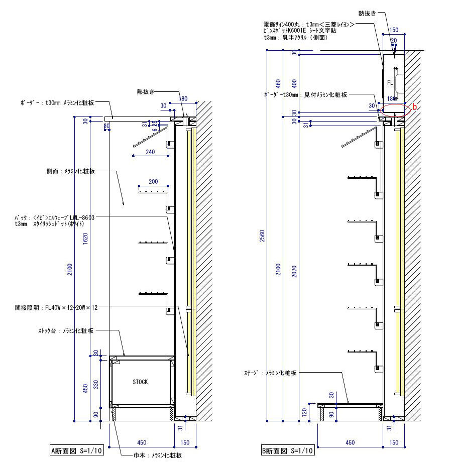
W4100×D600×H2100 図面参照 | ボーダー・電飾サインベース:木工化粧板仕上げ バック面:スリアクリドット柄抜き 電飾サイン本体:φ400アクリル樹脂 盤面:乳半アクリ |
■備考 *業態:婦人下着/ブラ・ショーツ壁面什器『pied a' pied』(2001.03) WFは壁面造作什器の略語 |
【作図解説】
今回の事例は、内照式の造作壁面什器を描いた姿図と断面詳細図です。
各スパンのバック面が発光する構造になっており、柔らかな光で商品の背景を演出します。
照明を“見せる”というより、“光で包む”ような印象を持たせる仕上げが特徴ですね。
やはり,商品がデリケートなので、それに合わせた演出です。
断面を見ると、照明器具の納まりや、盤面(拡散パネル)の固定方法までしっかり描かれています。
この什器では特に、内照部の厚みと押さえ縁のディテールが設計上のキーポイントになっています。
それでは続きをどうぞ!
応援、宜しくお願いします! ↓ ↓ ↓
デザインランキング
●スポンサードリンク【作図ポイント】
まずは、照明器具設置部の内寸。
ここをおろそかにすると、器具の影が盤面に映り込んでしまうという“あるあるトラブル”が起こります。
理想は内寸100mm以上の確保。これが光をきれいに拡散させる最低ラインです。
最近ではLEDの薄型器具が主流になり、従来よりも奥行きを抑えた設計も可能になりました。
コスト面ではまだ少し高めですが、メンテナンス性や見た目の軽やかさを考えると、十分メリットがあります。
もう一点の要チェックは、盤面の固定方法。
図面中のa部詳細を見ると、側板の見付けに押さえ縁を取り付けて盤面を押さえています。
納まりとしては問題ありませんが、図面上の押さえ縁寸法「6×6mm」ではビスをもみ込む際に割れる可能性が高いです。
実務上は10mm角程度を確保するのが安全です。
さらに仕上げを美しく見せるコツとして、押さえ縁を側板より2mmほど前に出すのがおすすめ。
建具枠と壁の関係と同じで、異素材を同面で仕上げるとどちらかがヨレてしまうんです。
わずかな“チリ”を設けるだけで、ラインがすっきりして見た目の精度がぐっと上がります。
【私見として】
内照式什器は、照明と構造のバランスがすべて。厚みを詰めようとすればするほど、光ムラや器具の映り込みが出やすくなります。
一方で、スペースを取りすぎると全体のデザインバランスが崩れてしまう。
まさに“光と寸法のせめぎ合い”が、この手の什器の面白いところです。
LEDの登場で、以前よりも設計自由度は格段に上がりました。
ただ、光の質や拡散具合をどう表現するか――その部分に設計者のセンスが問われますね。
【まとめ】
この壁面什器のポイントは、
照明器具と盤面の距離(内寸)は最低100mm確保すること。
押さえ縁は10mm角以上、側板より2mm前に出すこと。
異素材同士はチリ寸法を設けて、ラインをきれいに収めること。
内照式什器は、単なる“光るバック”ではなく、空間全体を整える演出装置です。
光の設計を意識することで、什器そのものの完成度も一段上がります。最後に、この事例で必要な断面詳細図を添付しておきます。

応援、宜しくお願いします! ↓ ↓ ↓
デザインランキング