
今回は、ステーショナリーショップや、一般文具店などで活躍する壁面什器の作図を紹介します。
実物件は、前述したステーショナリーショップで、2000年代に描いた作図です。
壁面什器には、固定型(造作什器)と自立型がありますが、一般的には手の込んだモノは固定型が多いと感じます。
また、自立型は俗に言う単品什器として取り扱われます。
どちらの什器も、壁面のボリュームゾーンに特化して、魅せる演出が必要となります。
ただ、今回はその中でも魅せる什器と考えます。
MDは、ポストカード類とその関連商品を展示しています。
それでは、重要なカ所(これだけは覚ること!)に進めます。
続きをご覧ください!
応援、宜しくお願いします!↓ ↓ ↓
デザインランキング
にほんブログ村
●スポンサードリンク
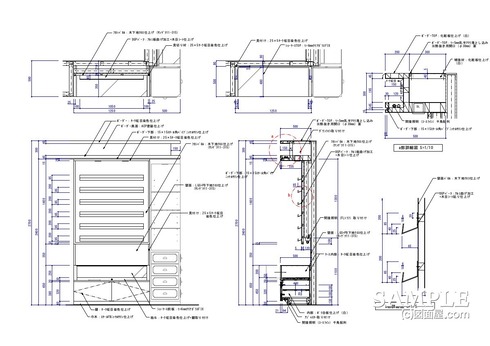
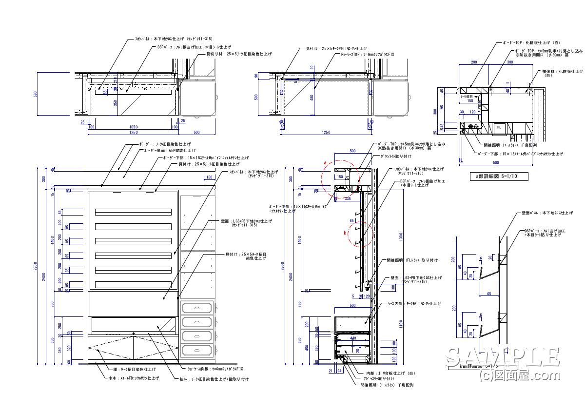
ポイント1以下の縦断面詳細図を覚えること!
内容は図面を読み取って理解してください。
初心者の方以外は、すぐに理解出来ると感じます。
また、初心者の方も時間をかければ、理解出来ます。
ポイント2以下は、什器トップの横ボーダー詳細図です。この手法はよく使います。
それほど難しい図面ではありません。
で非これを見て描いてみてください。
図面に上達は、毎日描くということです。
時間を惜しまない人こそ、図面を早く描けるようになります。
上の縦断面詳細図と平行に見ていただければ、より理解出来るはずです。
図面の精度が、かなりの良いので、この描き方は真似るようにしてください。
必須です!!
ポイント3
この断面図も、ポイント2と同様に縦断面詳細図を見ながら進めるようにしてください。
これは、ガラスショーケースです。
ステーショナリーショップだけに、このガラスケースには、万年筆などのような筆記用具などを展開します。
この手のショーケースも、同じようなのが、多く見られます。
興味のある方は、百貨店の文具売り場をリサーチしてください。
必ず見つかります。

今回の壁面造作什器でポイントとなるカ所を説明しましたが、まずは図面を描くこと大事と考えます。
応援、宜しくお願いします!↓ ↓ ↓
デザインランキング
にほんブログ村