
■サイズ
| ■仕様 |
W750×D118×H2600 図面参照 | 開口枠:木工化粧板仕上げ(木目) ガラリ:スチール焼き付け仕上げ(枠同色)
|
■備考
|
今回は、開口枠とスチール製がラリのお話です。まず、上の作図を見てください!
スッキリした開口枠の上にスチール製のがガラリが見えますが、本来は付けたくなかったんです。
しかし、法規的な排煙処理が必要となり、仕方なく付けたのです。
というのも、平面の上部にあたるスペースが、フィッティングルーム(FR)があり、居室とみなされたわけなんです。
よくひっかかるケースで、FRだけで無くバックヤードの壁面にも、排煙開口用ガラリは必須です。多田、デザイン調整上、これを付けるとすっきり感が損なわれます。
注意しなければならないのは、羽根の角度によって排煙面積が変わりますので、事前に面積計算をしなくてはなりません。
また、羽の枚数も開口面積に関わってくるのでピッチもよく検討する事をお勧めします。
一般的に排煙開口の対象となる居室の面積の1/50が排煙面積となります。
応援、宜しくお願い致します。 ↓ ↓ ↓
にほんブログ村
人気ブログランキング
●スポンサードリンク
それでは、仕方なく付けたスチール製のガラリと、開口枠についてもう少し話を進めますので、続きをご覧ください。
まず、平面詳細図を見てください。

木製の開口枠です。建具が付かないので開口補強は特に施してはいません。開口枠と堅木で充分です。
納め図としても、クリアです。
後の断面図にも出てきますが、FR側にカーテンを取り付けるレールが出てきますが、特に重量破棄にしなくても大丈夫でした。
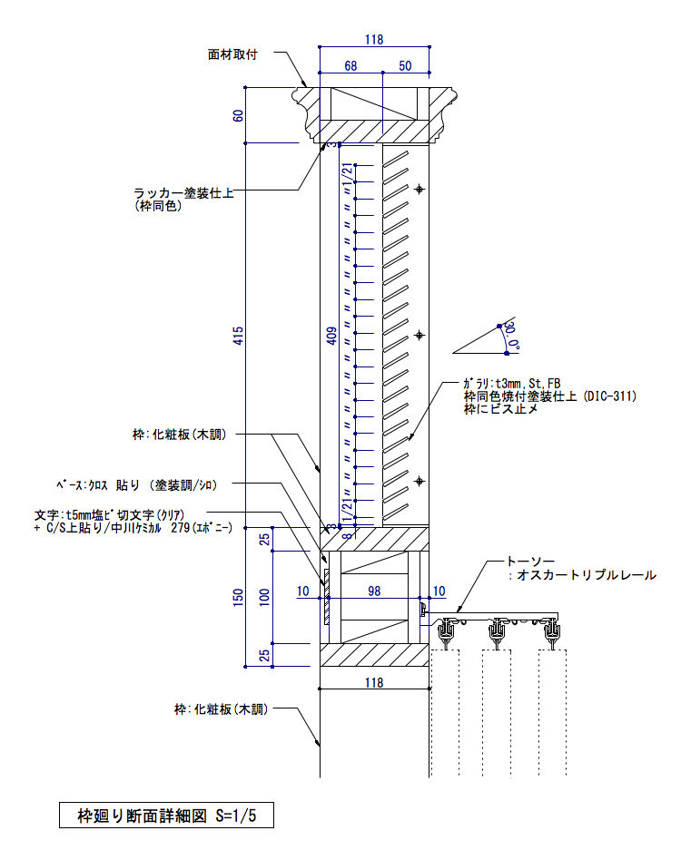
次に、スチール製ガラリの断面図を見て頂きましょう。以下です。

納め図面としては、こちらも合格点ですが、やけにガラリの羽が多すぎるような気もしますが、計算したらこのようなカタチになりました。
ここに、前述したカーテンが確認できます。
図面を描きだした初心者の人にとって、断面図って確かに難しいイメージがあります。が、今回の作図事例は、開口枠なのでそれほど難しく無いと感じます。
ですから、このサイトを見ながら、描いてみるのも良いことでしょう。
図面屋として、誰もが通らなければならないちょっとした関門です。これ以後も多くの関門があります。
こんなのチョロいもんです。
努力すれば、必ず描けますから!
応援、宜しくお願い致します。 ↓ ↓ ↓
にほんブログ村
人気ブログランキング