間接照明付きニッチ壁面造作の姿図と断面図|図面屋ま〜の "Easy Living" な日々

図面屋ま〜の "Easy Living" な日々

リタイヤした平凡な図面屋です。仕事から解放されて日々のんびり気楽に暮らしてます。そんな奴が好き勝手書いてます!

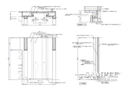
間接照明付きニッチ壁面造作の姿図と断面図

壁面ニッチ部詳細図


■サイズ
■仕様
W3000×D366×H4000
図面参照 
 ニッチ壁面:不燃PBt12.5+9.5下地塩ビシート貼り
 間接照明BOX:木工化粧板仕上げ(白)
■備考


この作図事例は間接照明付きニッチ壁面造作の姿図と断面図です。

ディスプレイのエリアで使われる事もあったり、ショップ間の干渉部で使われる事もあります。

ニッチ奥面の仕上げを他と異なった素材にするだけでも視認性は上がります。

堀上天井と同様に照明器具BOXをスチール製にして石膏ボード(PB)を貼り伸ばす方法もあります。

人気ブログランキングに参加していますので、
応援、宜しくお願い致します。
      
   
2013/06/18| コメント:0トラックバック:0Edit

コメントする

名前
 
  絵文字
 
 
Copyright © 図面屋ま〜の "Easy Living" な日々 All Rights Reserved.
当サイトのテキストや画像等すべての転載転用・商用販売を固く禁じます