ミラーパネルと壁面システムの姿図と断面図|図面屋ま〜の "Easy Living" な日々

図面屋ま〜の "Easy Living" な日々

リタイヤした平凡な図面屋です。仕事から解放されて日々のんびり気楽に暮らしてます。そんな奴が好き勝手書いてます!

ミラーパネルと壁面システムの姿図と断面図

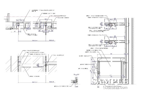
壁面棚詳細図1

■サイズ
■仕様
W2205×D500×H3200
図面参照 
 壁面:木工下地t=5mmクリアミラー貼り
 地袋:ウォールナット染色CL仕上げ
 抽斗取っ手:本革仕上げ
■備考


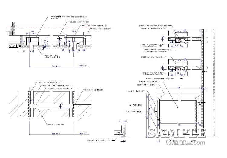
この作図事例はミラーパネルと壁面システムの姿図と断面図です。

スリット柱がミラーの底目地に見えるような納め方になっています。

スリット柱を固定する金物を曲げ加工したスチールで作っています。

注意点として可動棚のブラケットがミラーのエッジを傷つけない為にもミラーの両端に見切りを取り付けた方がより安全です。

各部分詳細図は続きを読むからご覧下さい。

人気ブログランキングに参加していますので、
応援、宜しくお願い致します。
      
   

壁面棚詳細図2
2013/06/21| コメント:0Edit

コメントする

名前
 
  絵文字
 
 
Copyright © 図面屋ま〜の "Easy Living" な日々 All Rights Reserved.
当サイトのテキストや画像等すべての転載転用・商用販売を固く禁じます