面材を多用したオープン棚什器の姿図と断面図|図面屋ま〜の "Easy Living" な日々

図面屋ま〜の "Easy Living" な日々

リタイヤした平凡な図面屋です。仕事から解放されて日々のんびり気楽に暮らしてます。そんな奴が好き勝手書いてます!

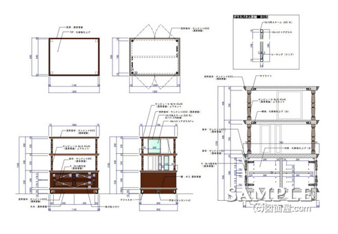
面材を多用したオープン棚什器の姿図と断面図

オーダー用什器
■サイズ
■仕様
W600×D600×H2778
図面参照 
 サッシュ・ハカマ:スチールクロームメッキ仕上げ
 スクリーン:t=8mmクリアガラス+飛散防止フィルム貼り
■備考


この作図事例は面材を多用したオープン棚什器の姿図と断面図です。

棚見付けや腰、巾木に面材を多用し重厚感あるオープン什器ですね。

クラシックスタイルの什器ではこのダミー抽斗を良く使われます。

注意点としては固定棚間に取り付けているガラスの取り付け位置で、何らかの衝撃で割れる可能性が
あるのであまり外側へ出さないことです。

人気ブログランキングに参加していますので、
応援、宜しくお願い致します。
      
   
2013/06/30| コメント:0Edit

コメントする

名前
 
  絵文字
 
 
Copyright © 図面屋ま〜の "Easy Living" な日々 All Rights Reserved.
当サイトのテキストや画像等すべての転載転用・商用販売を固く禁じます