シングルハンガーラックの姿図と断面図|図面屋ま〜の "Easy Living" な日々

図面屋ま〜の "Easy Living" な日々

リタイヤした平凡な図面屋です。仕事から解放されて日々のんびり気楽に暮らしてます。そんな奴が好き勝手書いてます!

シングルハンガーラックの姿図と断面図

SHG

■サイズ
■仕様
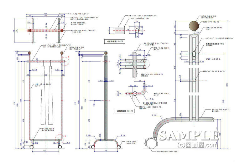
W650×D400×H1670
図面参照 
 本体:SUS HL丸パイプ
 HGパイプ:28×16mmSUS HL楕円丸パイプ
 装飾:φ50mm木球体 OSCL仕上げ
■備考


この作図事例はシングルハンガーラックの姿図と断面図です。

楕円のハンガーパイプはちょっと珍しいので掲載しました。

左右の支柱も丸パイプの曲げ加工でハンガーパイプを挟見込む形にしています。

全てのパーツがパイプで作られているのでパイプの径に対してどこまで曲げる事が出来るのか、 製作側と協議が必要です。

人気ブログランキングに参加していますので、
応援、宜しくお願い致します。
      
    
2013/07/02| コメント:0トラックバック:0Edit

コメントする

名前
 
  絵文字
 
 
Copyright © 図面屋ま〜の "Easy Living" な日々 All Rights Reserved.
当サイトのテキストや画像等すべての転載転用・商用販売を固く禁じます