間接照明ボックス用壁面点検戸の姿図と断面図|図面屋ま〜の "Easy Living" な日々

図面屋ま〜の "Easy Living" な日々

リタイヤした平凡な図面屋です。仕事から解放されて日々のんびり気楽に暮らしてます。そんな奴が好き勝手書いてます!

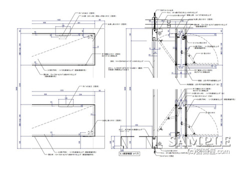
間接照明ボックス用壁面点検戸の姿図と断面図

ブラックフォーマル壁面詳細図

■サイズ
■仕様
W1420×D282×H3000
図面参照 
 開口枠:スチールLアングル焼き付け仕上げ
 メンテ扉:t=12化粧板パネル
■備考


この作図事例は壁面の間接照明ボックス用の壁面点検戸の姿図と断面図です。

照明器具を点検する際に点検戸が邪魔にならないように注意し、尚かつ照明器具に手が届く為に必要な有効寸法を確保する事にまず重点を置いて作図しました。

各内外の点検戸にはストッパー用でステーを取り付けて、メンテナンス作業時に点検戸を支える必要がないようにしています。

人気ブログランキングに参加していますので、
応援、宜しくお願い致します。
      
    
2013/07/25| コメント:0トラックバック:0Edit

コメントする

名前
 
  絵文字
 
 
Copyright © 図面屋ま〜の "Easy Living" な日々 All Rights Reserved.
当サイトのテキストや画像等すべての転載転用・商用販売を固く禁じます