水循環システムと滝の断面図|図面屋ま〜の "Easy Living" な日々

図面屋ま〜の "Easy Living" な日々

リタイヤした平凡な図面屋です。仕事から解放されて日々のんびり気楽に暮らしてます。そんな奴が好き勝手書いてます!

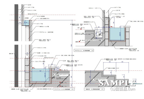
水循環システムと滝の断面図

床上詳細


■サイズ
■仕様
W×D×H
図面参照 
 水槽・壁面:モザイクタイル貼り
 床:磁器質タイル貼り
■備考


この作図事例はチャペルの祭壇バックの水循環システムと滝の断面図です。

水の循環システムに関してはあまり詳しくないのでご説明が出来ないのですが、滝の断面図として参考になればと思い掲載しました。

水槽廻りと上部の水たまりまで水を循環させるのですが、システムにどれだけの有効寸法が必要なのかをメーカーとの協議が必要です。

人気ブログランキングに参加していますので、
応援、宜しくお願い致します。
      
    
2013/07/27| コメント:0トラックバック:0Edit

コメントする

名前
 
  絵文字
 
 
Copyright © 図面屋ま〜の "Easy Living" な日々 All Rights Reserved.
当サイトのテキストや画像等すべての転載転用・商用販売を固く禁じます