壁面コーナー什器の姿図と断面図|図面屋ま〜の "Easy Living" な日々

図面屋ま〜の "Easy Living" な日々

リタイヤした平凡な図面屋です。仕事から解放されて日々のんびり気楽に暮らしてます。そんな奴が好き勝手書いてます!

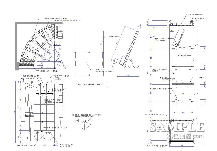
壁面コーナー什器の姿図と断面図

04シャツ壁面

■サイズ
■仕様
D450×H2280
図面参照 
 本体:ニヤトー染色CL仕上げ
 シャツスタンド:ヤトー染色CL仕上げ 
■備考


この作図事例は壁の入隅を上手く活用した壁面コーナー什器の姿図と断面図です。

各段の棚板にダボを取り付け、妻板側の底面には溝を掘って正面からスライドさせて差し込む仕口になっていますが、

改良点として棚下照明を各段に取り付けられるように棚板を調整して各段が暗くならないようにする事が上げられます。

人気ブログランキングに参加していますので、
応援、宜しくお願い致します。
       
 
   
2013/08/16| コメント:0トラックバック:0Edit

コメントする

名前
 
  絵文字
 
 
Copyright © 図面屋ま〜の "Easy Living" な日々 All Rights Reserved.
当サイトのテキストや画像等すべての転載転用・商用販売を固く禁じます