
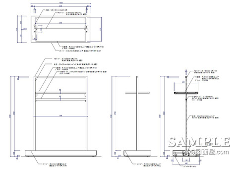
■サイズ
| ■仕様 |
W1000×D450×H1350 図面参照 | ステージ:木工化粧板仕上げ 支柱:25×25スチール角パイプ焼き付け仕上げ 可動棚:木工化粧板仕上げ |
■備考 このシングルハンガーラックに使用している鋼材は下記を参照下さい。 ⇒ 鋼材表【スチール角パイプ】
|
この作図事例は多機能なシングルハンガーラックの姿図と断面図です。
一般的なシングルハンガーラック(SHR)は吊り機能だけで棚機能はありませんが、支柱をスリットパイプにしてパーツの組み替えを出来るようにしている什器です。
ハンガーにもフェイスアウト(FO)フックを取り付け出来る様に丸パイプではなく、角パイプ仕様にしています。
パーツを追加して多機能な什器にしたり、何も付けずにシングルハンガーラック(SHR)としても使用できるので多様性は充分あります。
しかし支柱の高さが可変しない分コート等の丈が長い商品には適していません。
又、棚受けもスリットの1点受けタイプのブラケットで受けている為安定感に若干の不安が残ります。
コストが合うのであればこの棚受けだけを別注金物にする手もありますね。
ステージと支柱のジョイント部分の詳細図は続きを読むからご覧下さい。
人気ブログランキングに参加していますので、応援、宜しくお願い致します。

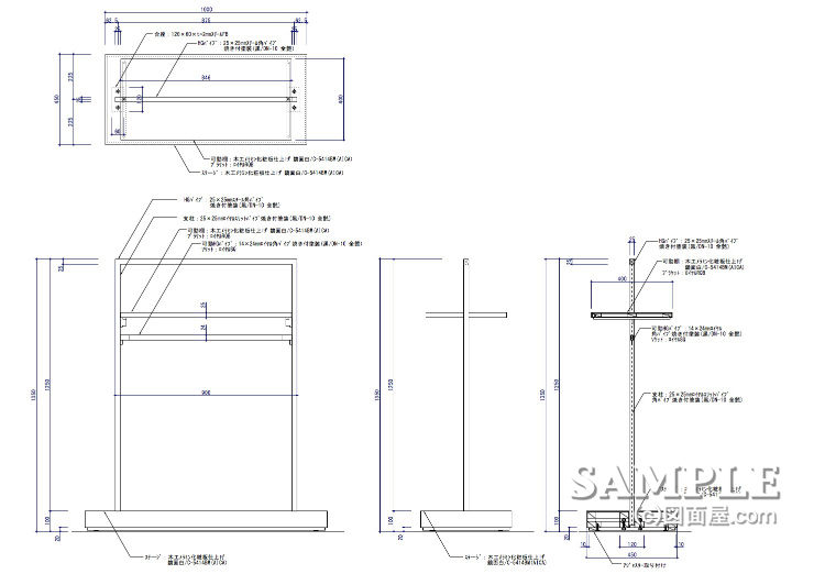
支柱とステージとのジョイント部分の断面詳細図です。
支柱の受け金物に支柱を差し込む収めになっていますが、支柱の底面にベースを溶接して裏面からビス止めという方法もありますね。
このボルトとナット止めの場合はステージ内部にナットを締め付けるだけのスペースが必要となりますが、実際にはナットを締め付けにくい隙間しかありませんね。