
■サイズ
| ■仕様 |
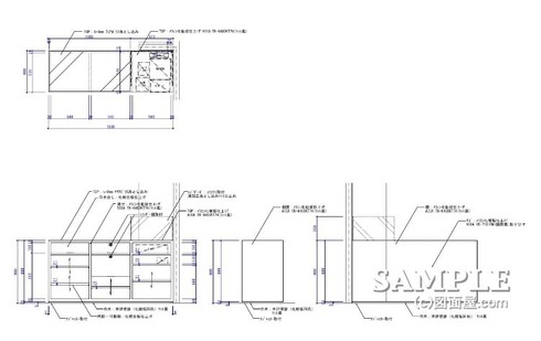
W1800×D600×H900 図面参照 | 天板:t=8クリアガラス落とし込み 本体:木工化粧板仕上げ
|
■備考
|
この作図事例はガラス天板のレジカウンターの姿図と断面図です。
天板にガラスを使用している所以外は他のレジカウンターと大差はありません。
ただこのタイプのレジカウンターで注意すべき点は、落とし込み部分の見込みサイズです。
レジカウンターに限らず天板にガラスを用いた什器全てに当てはまる事なので必ず覚えておいて下さい。
この見込みサイズが小さければ小さいほどデザイン性が上がりますが、ちょっとの衝撃で割れてしまいます。この事例では15mmとっていますね。
最低でも10mm以上を確保しなければ天板の角なので少ない衝撃で簡単に割れてしまうので注して下さい。
10mm以下にしたい場合は金物の方が強度面としてはよいでしょう。
ただしこの場合は意匠にも関係してくるのでデザイナーとの協議が必要になります。
尚、このレジカウンターの断面図は続きを読むからご覧下さい。
人気ブログランキングに参加していますので、応援、宜しくお願い致します。

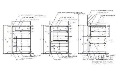
レジカウンターの断面図です。
基本的にレジカウンターは機能を重視されますので引き出しや可動棚のサイズは何を置くかによって変わって来ますので店側に確認が必ず必要となります。
c断面図では電話とドロアーが置かれると言う事だったのでそれぞれの有効寸法を確保した断面図になっています。