
■サイズ
| ■仕様 |
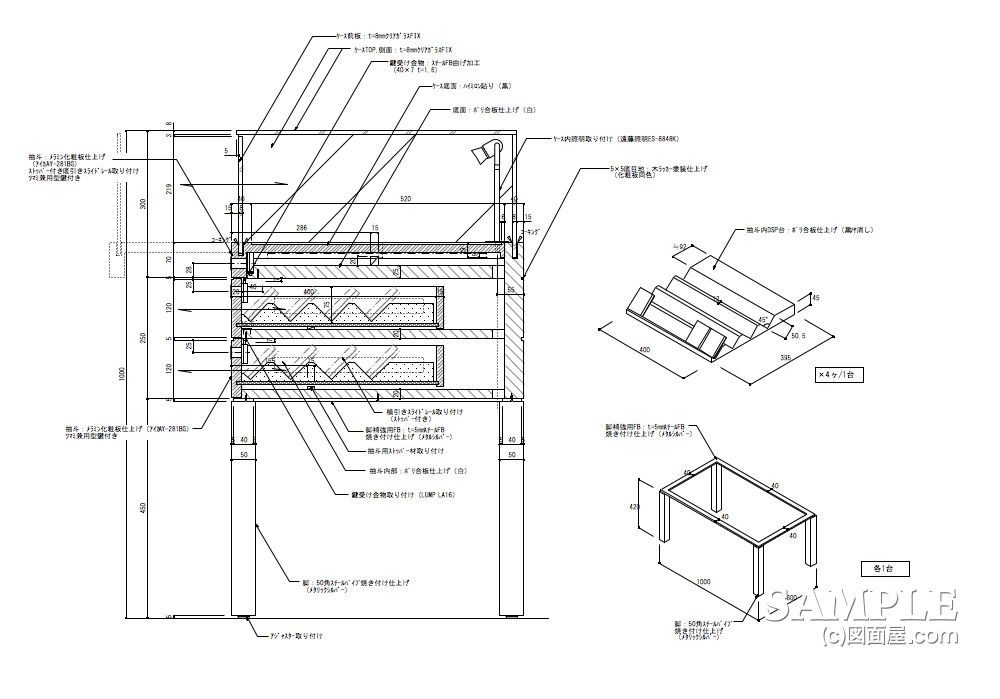
W1000×D600×H1000 図面参照 | ケース:t=8mmクリアガラス組み 腰・抽斗:木工化粧板仕上げ 脚:50×50mmスチール角パイプ焼き付け仕上げ |
■備考
|
この作図事例は、ZIPPOライター専用ショーケースの三面図です。
ケース部分は一般的なのショーケースとさほど変わりませんが、抽斗内部にZIPPOライター専用のトレイを組み込んでいます。
ケース上段の天板は、商品の出し入れのために可動となっていて、この仕様については、アクセサリーショップなどでは必ず見受けらえます。
それでは、この什器の機能面や断面図の説明していきましょう。
応援、宜しくお願い致します。 ↓ ↓ ↓
にほんブログ村 
人気ブログランキング
天板の下は、ライターなどのストックとして使用されます。鍵についてもツマミと兼用しているので、殆ど抽斗に突起物なないスッキリした見え方にしています。
さて、このショーケースの製作上での注意点は、ケース内照明の配線経路と安定器の設置場所を何処に設置するかです。
配線経路は、4本ある脚の1本に開口を上下1箇所ずつ開け、そこから配線開口を通り、ケース内照明へとつなぎ込む事にしました。又、安定器は抽斗の奥への取り付けが望ましいですね。
(断面図参照)

上の作図は、ライター専用ショーケースの断面図と専用トレイとスチール脚のスケッチです。
基本的に、陳列はケース付きでのかたちが主となるので、抽斗の有効高さと奥行きはライターケースのサイズを基準に設定しています。
また、抽斗の使用頻度が高いので、什器自体の安定性を保つ為に、補強として脚の角パイプをフラットバー(FB)で繋ぐようにしました。
この図面事例では、抽斗が片方にしかないケースとなっていますが、両面に抽斗を設けるタイプにアレンジすることも良いでしょう。
応援、宜しくお願い致します。 ↓ ↓ ↓
にほんブログ村 
人気ブログランキング