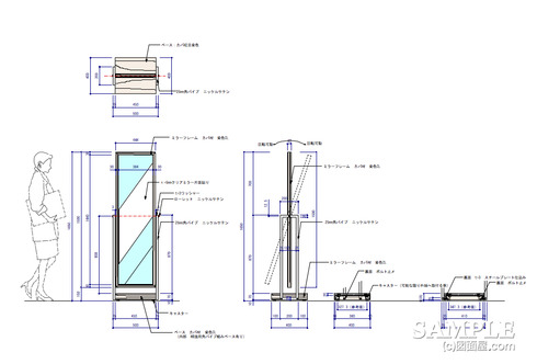
| ■サイズ | ■仕様 |
| W500×D400×H1650 | 木部:カバ材染色仕上げ フレーム:スチールニッケルサテン仕上げ |
■備考 尚、このCADデータはDL-MARKETで販売しています。 ⇒スタンドミラー詳細図_0002
|
アパレルショップでは店内に少なからず姿見は必要なものです。
普段では、マネキン屋さんでのリース商品でも良いのですが、ちょっとデザインを施してやればここまで
お洒落感があり品が良い姿見が出来ます。
今回はそんな姿見をご紹介します。
デザインはシンプルでごく一般的なスタイルで構成しました。特に
ここだといった特徴はありませんが、ミラー部が可動するためキャスターが重要になってきます。
それでは、続きをご覧あれ!!
応援、宜しくお願い致します。 ↓ ↓ ↓
にほんブログ村
デザインランキング
姿見というものは、店内で引っぱりだこになる繁忙期があります。
先ほどでも言いましたが、上部ミラー可動時点でもそうですが、店内移動が頻繁になり姿見の下部に取り付けられてる
キャスター(ストッパー付き)と什器との接合部分が緩みがちになり不安定になってきます。
これについては、どちらの姿見でも同様のことが言えますが、今回の事例ではそのカ所以外にもちょっと不なんなところがあります。
以下の図面をご覧下さい。

実は、ミラーの回転部分を支える金物と下部の木製ステージとの接合部分なのです。よく見ると
ローレット+ボルトで締め付けるようになっています。
しかし、使用頻度が重なるどうしても締め付け部分が緩くなってくるのです。
困ったものだと感じ、図面では描いてはいませんが、
ボルトを貫通させて左右でナットで締め付けを強化したのを覚えています。右断面図で言えば、この部分にボルトを貫通させるのです。
その方法で対処したですが、最初の時点でもっと考えておけば良かったと感じました。決して失敗例とは言いませんが、脚下を固めれば良い姿見什器だと思います。
尚、このCADデータはDL-MARKETで販売しています。
⇒
スタンドミラー詳細図_0002
応援、宜しくお願い致します。 ↓ ↓ ↓
にほんブログ村
デザインランキング