
■サイズ
| ■仕様 |
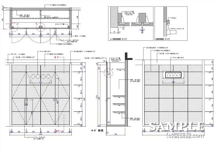
W2310×D700×H2400 図面参照 | 本体・建具:ナラ染色パネル市松貼り 内部:ポリ合板仕上げ |
■備考
|
この作図事例は預かりケースの姿図と断面図です。
右側の図面は同じ意匠を施したディスプレーパネルの立面図ですが、特別難しい納めは無いので割愛します。
さてこの預かりケース本体はナラ材の染色仕上げで、建具も同様に市松貼りで意匠を施しています。
市松貼りを区切る底目地は後々で取手等の取り付け高さの基準となるので、意匠的なバランスも含めて安易に高さを決めない方が良いでしょう。
市松貼りの効果は比較的大きな面で柄を変えていく方が、より印象的になります。
あまりこ割にするとダイナミックさが減少し、見る人に与えるインパクトも薄れます。
その為、何処を基準にするかによって印象も変わってきます。
人気ブログランキングに参加しています。応援、宜しくお願い致します。
↓ ↓ ↓
この預かりケースでは上部で高さの調整を取っているのが読み取れますね。
建具高さを考慮して上部で調整しているのは分かります。しかし、本来人の目線は1m50cmから1m80cmまでが一般的だと言われています。(VMDではこのエリアをゴールデンゾーン等と呼びます)
この目線に近い所で調整すると見た目的にはあまり綺麗ではありません。
この場合は床面の方で調整した方が望ましいです。
その際、取っ手やサインの取り付け位置が底目地にかからないように注意して下さい。
収め方に関しては特に難しい所はありませんが、建具の吊り元(特に中央部)部分は開閉時に一番荷重がかかる所なので、強度のあるサイズにしておく事が大事です。