リタイヤした平凡な図面屋です。仕事から解放されて日々のんびり気楽に暮らしてます。そんな奴が好き勝手書いてます!

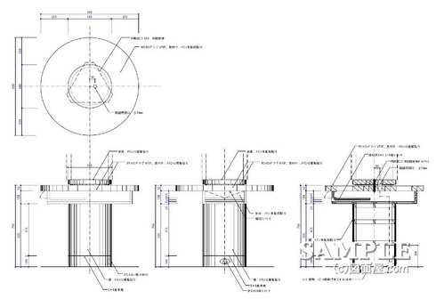
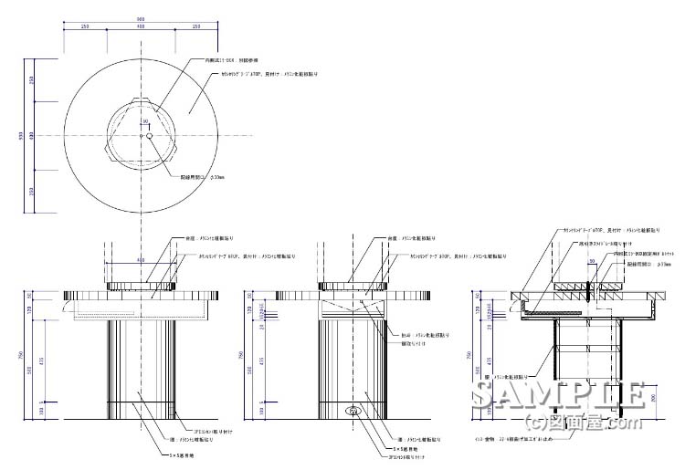
| ■サイズ | ■仕様 | |
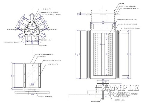
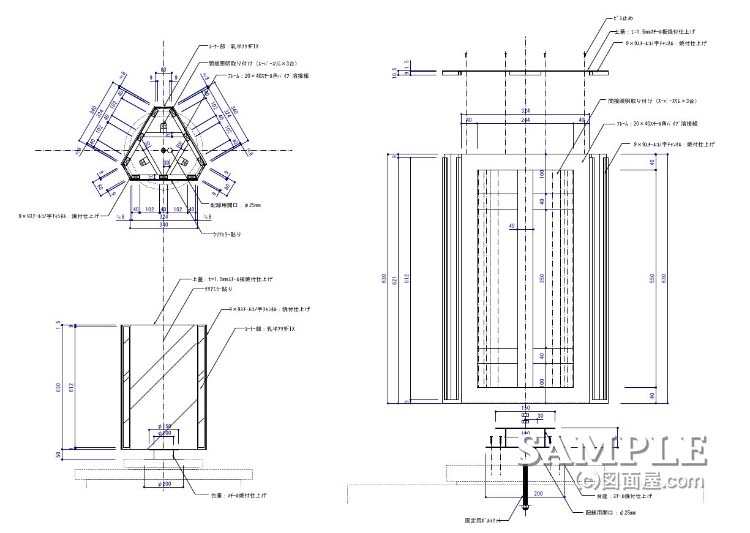
| テーブル:W900×D900×H800 ミラースタンド:W340×D340×H641.5 図面参照 | 円形テーブル:木工化粧板仕上げ ミラースタンド:40×20スチール角パイプ溶接組フレーム +t=5乳半アクリFIX 内部照明:エースラインスーパースリム | |
| ■備考 | ||
収めについて注意すべき点は、このテーブルには特にありません。ただ、抽斗を収納するボックスと腰とが同サイズになっている点が、気になりますね。
