預かりケースの姿図と詳細図|図面屋ま〜の "Easy Living" な日々

図面屋ま〜の "Easy Living" な日々

リタイヤした平凡な図面屋です。仕事から解放されて日々のんびり気楽に暮らしてます。そんな奴が好き勝手書いてます!

預かりケースの姿図と詳細図

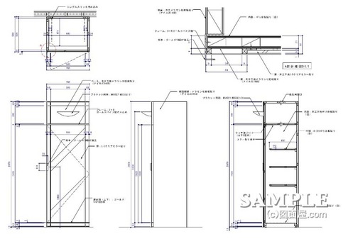
預かりケース図

■サイズ■仕様
 W705×D580×H2070
 本体:木工化粧板仕上げ
 建具見切り材:9×9スチール角パイプゴールドメッキ仕上げ
 建具:木工下地t=5mmクリアミラー貼り 
■備考


この作図事例は預かりケースの姿図と詳細図です。
特にアパレルの店舗のレジ付近に設置する事が多い什器ですね。

又、木工所で製作して設置するだけの什器タイプと、側板を造作壁で設ける造作タイプの2種類が主です。

什器タイプは設置場所を選ばず何処にでも移設が可能な点が上げられますが、もう一つ利点を挙げると、建具の収め方がインセットとかぶりの2通りが出来る所です。

しかし、あくまでも什器として設置するのでサイズや重量に制限が掛けられます。

一方、造作タイプはサイズ等の制限は無い代わりに移動が出来ないというデメリットもあります。
それぞれ一長一短があるので設置場所に応じたタイプを選ぶ事が望ましいですね。

さて、預かりケースを作図する場合の注意点はというと、2点程あります。
まず1点目は建具が描く軌道円弧の大きさです。

これはレジバックに設置する際に大きく関わってくる点で、レジとケース間の通路を塞ぐような建具サイズですと、オペレーションがしにくくなります。

よって、人一人が横向きでも通れる程の猶予を持たして設計するように心掛けて下さい。
場合によっては、建具を観音開きにする事も考えておく必要があります。

2点目につていは続きを読むからご覧下さい。
又、丁番(スライド丁番)についても画像を用いて簡単ではありますが解説しております。

人気ブログランキングに参加していますので、
応援、宜しくお願い致します。
 ↓  ↓
       
   

2点目については丁番です。通常、什器タイプはスライド丁番を主に使用します。

高さや重量によってはピアノ丁番、或いはPヒンジなどを使用する事もあるので、少しでも不安がある場合は上司の方や木工所に相談した方がすぐに解決しますよ!

取り付ける個数の目安は、だいたいH1500程度までなら2箇所で、それ以上であれば3箇所ですね。
メーカーのカタログやHPにも目安が掲載されているので、そちらも参考にしてみて下さい。
 
ここで本文でふれいた「インセット」と「かぶり」について画像をふまえて簡単に説明しておきますね。 

まずインセットとは、正面から見た時に枠が見える収め方を言い、全かぶりはその逆で枠が見えない状態の収め方を言います。
 スライド丁番
画像引用元:スガツネ産業株式会社
左側がかぶせタイプで右側がインセットです。
天袋やストック等では両方を使う事もあるので基本的な収め方をこの図で覚えておいて下さい。
2014/11/11| コメント:0トラックバック:0Edit

コメントする

名前
 
  絵文字
 
 
Copyright © 図面屋ま〜の "Easy Living" な日々 All Rights Reserved.
当サイトのテキストや画像等すべての転載転用・商用販売を固く禁じます