
■サイズ
| ■仕様 |
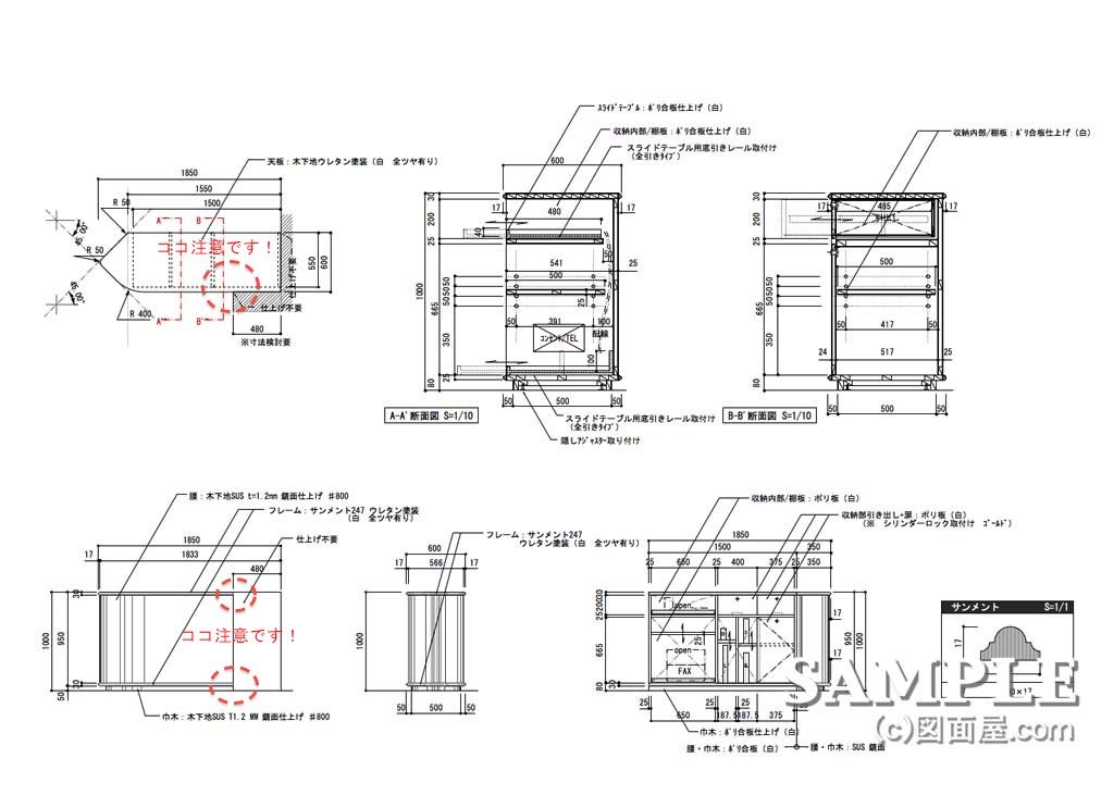
W1850×D600×H1000 図面参照 | 天板:木工ウレタン塗装仕上げ 天板見付け:サンメントウレタン塗装仕上げ 腰:木工下地SUS鏡面板貼り仕上げ |
■備考
|
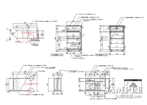
この作図事例は面材付サービスカウンターの姿図と断面図です。
複雑な納めを施しているところはないのですが、このサービスカウンターには注意すべき箇所があります。
図面内に赤点線で囲っている箇所を見て頂くと分かるように、このサービスカウンターの1部が壁に隠れてしまうところがあります。
この部分に意匠を施しても見えないので仕上げをする必要はありませんよね。
又、天板と巾木部に取り付けている面材のサンメントにも同じで、この壁面に当たって止まるようにするのが普通です。
■サンメントに関してはこちらを参照して下さい
⇒
みはし株式会社しかし、この事例では面材はそのまま奥壁まで取り付ける様になっています。
この状態では壁とカウンターの腰との間にサンメントの奥行き分の隙間が出来る事になります。
結果、この壁に隠れてしまう腰面が隙間から見えてしまうあまり見栄えの良くないものになってしまいます。
人気ブログランキングに参加していますので、応援、宜しくお願い致します。
これはカウンターの奥行きを面材を含めて設定してしまっている小さなミスが原因なんです。
初めから天板と腰が同面で後から面材を取り付けるような考え方なら間違えなかったはずなんです。
こういったミスは面材を使った什器図や造作図にも言える事なので十分注意して下さい。
又、面材を取り付ける出発点と終点が何処なのかをちゃんと把握しておく事も重要です。
極端に言ってしまえば面材(特にサンメント)はあくまでも装飾であり、本体の奥行きには含まないと考えていた方が間違いは少なくなるでしょう。