リタイヤした平凡な図面屋です。仕事から解放されて日々のんびり気楽に暮らしてます。そんな奴が好き勝手書いてます!

| ■サイズ | ■仕様 | |
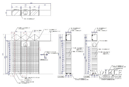
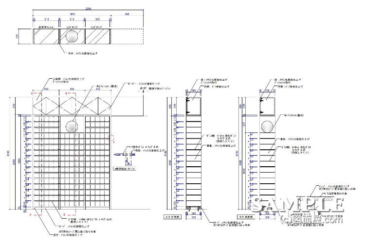
| W2355×D320×H2400 図面参照 | 本体:木工化粧板仕上げ 棚板:t=6強化ガラスコーキング止め | |
| ■備考 | ||
変わって、固定棚の取り付け方法を見てみると、差し込み式になっています。
ま〜
図面屋ま〜では、若き同業者の方々のお役に立てるよう、今まで描き続けてきた図面資料やデザイン資料などをお伝えしております。 ただ、掲載している作図資料はあくまで資料であり、全ての店舗や施工に当てはまるものではありません。ですから、参考程度の資料とお考えください。
Powered by ライブドアブログ