
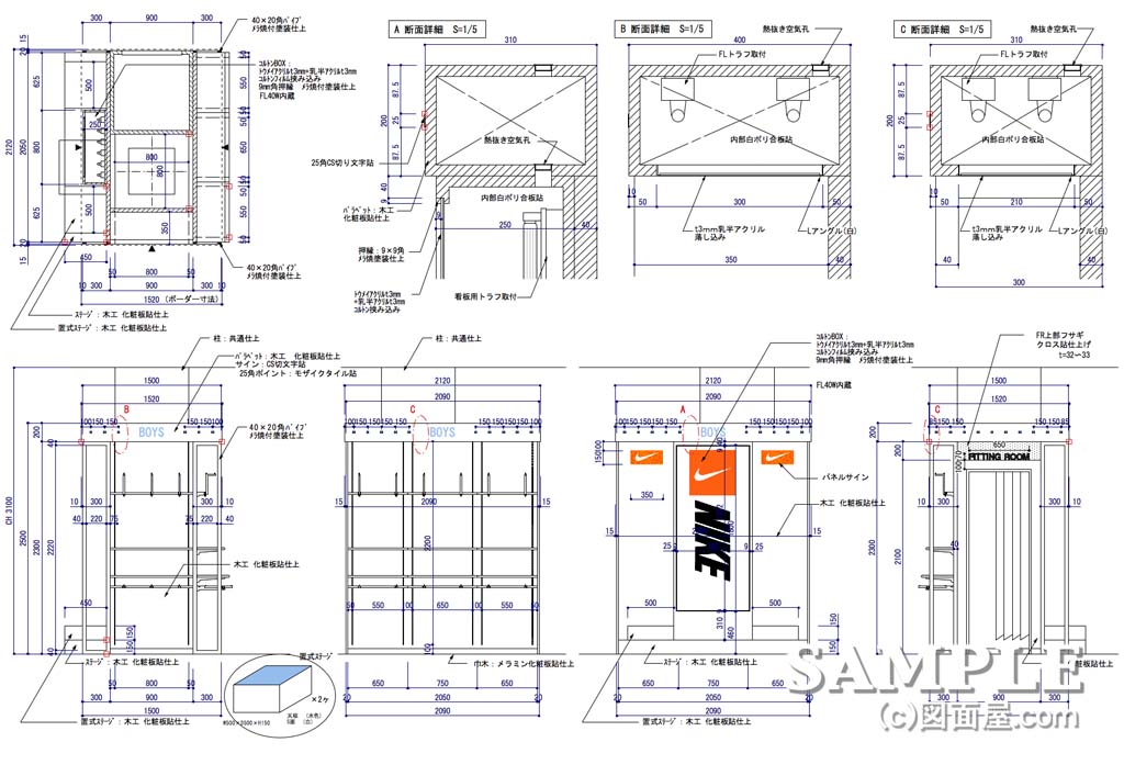
| ■サイズ | ■仕様 |
W1520×D2120×H2500 作図参照 | 本体:木下地化粧板仕上げ コルトンボックスクリアアクリ+乳半アクリ 押さえ縁:9×9スチール角パイプ焼き付け仕上げ |
■備考
|
商業施設での設計で、常々思うことは柱の存在です。
まあ、柱がないと建物が出来ないのは承知先晩ですが、設計する方としてはやはりやっかいな代物です。
この図面は、百貨店や量販店などでのボリュームゾーンに当たる売り場の柱巻造作事例ですが、この場合は必ずといっていいほどフィッティングルーム(FR)が、存在します。
というのも、あまり高さのあるモノは見通しが悪くて売り場では、都合が悪いことが多いのです。
応援、宜しくお願い致します。 ↓ ↓ ↓
にほんブログ村 
人気ブログランキング
ですから、柱、FRと高いモノを、「一緒にしてしまえ!」って考えで、当時はこの形式が多かったようです。
今は、逆に柱をもっと軽く見せる方法をとっているようですが、やはり難しいと考えます。
さて、図面はさておいてちょっと施工のお話です。
本来の造作は、LGS組+PBボードでの施工が常識となっています。
しかし、特に百貨店などは、短時間での施工が常です。
上記のような施工方法では時間を要する施工となり、百貨店などではとうてい時間的に太刀打ちできません。
そこで考えられたのが、木工パネル組みでの「時間節約的施工」となり、このような方法で考えられるようになりました。
しかし、実はこの木工パネル組みには、ふたつの利点があるんです。
ひとつは、施工屋泣かせではありますが、売り場移動するときにこの分解し、組み立てして再利用出来るというところです。
前述のLGSでの壁面に比べ、現場での加工調整が容易なのと、後の廃材処理も意外と簡単にできることですね。
ふたつめはコストですね。
少ない予算(?)で設置が可能であり、製作期間も什器と同じ扱いになるので、事前に製作できるところです。限られた予算と後期にはピッタリな工法だといえます。
とても利点が多いこの工法も良いことばかりではありません。
注意を要するのは、木工パネルということで強度も無く、耐久性はとても低いのが厄介なのです。
また、湿気や乾燥によって剃りや曲がりが生じたりもします。
今では、百貨店、量販店を含め消防法が厳しくなり、必ず不燃仕様が義務付けられるので、これまたやっかいな事情ですが、そこは施工会社さんが旨く立ち回っているようです。
最後に、図面的には特に特にあまり古い図面なので特に説明することもないでしょう。
ごっつい適当で、すみません。