
| ■サイズ | ■仕様 |
図面参照 | 本体:化粧板仕上げ+坂井リブ貼り 演出:t5mmグリーンエッジアクリル |
■備考 |
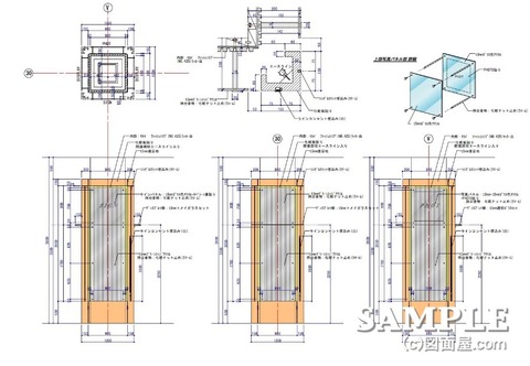
この作図事例は環境柱の姿図と部分詳細図です。
間接照明部の平面詳細図もしっかり描けていますので、柱詳細図の参考図として十分使えます。
この柱図の特徴は時期的に(かなり以前ですが)リブ材を多用するのが流行りましたね。
猫も杓子もこの材料を使うものだから、当時の売り場へ行けばリブ材のオンパレードでした。
デザインはよく考えられていて小洒落た見え方になっています。上手くリブ材を使った1例です。
ただこのリブ材を使用する場合には、計算が必要となりますね。
それは各コーナー部を綺麗にリブ材同士が合わさる必要があるからです。
凹凸のどちらで合わすかという事も注意しながら柱の仕上がりサイズを決めなくてはなりません。
人気ブログランキングに参加していますので、応援、宜しくお願い致します。
↓ ↓
もう一つこの柱の特徴を挙げるならば、コーナーの化粧柱と持ち出しスクリーンがバランス良く配置されている点ですね。
スクリーンにはグリーンエッジのアクリルを使い、持ち出しパイプで固定しています。
尚かつ、コーナーの化粧柱に間接照明を取り付けて照明による演出をしています。
この演出効果でバック面のリブ材がシルエットで浮き出てくるように見えるのです。
ただ、この化粧柱にスリットとラインコンセントが埋め込まれているので、陳列も出来る様にしていますね。
折角の演出が半減してしまいます。この部分が唯一残念な所です。
しかし、ここにはよいヒントがいっぱい詰まっています。
どうぞ真似して自分のデザインにして下さい。