内装図面に良く表記される用語の解説です。
≫一般 ≫仕上げ関連 ≫材料・建材 ≫建築・構造 ≫設備
【CH】シーリングハイ(ceiling hight)の略語で、
床の仕上がり面から天井面までの高さを示します。
【CT】カウンター(Counter)を示す略語です。
【FIX】はめ殺し、固定されている事を意味し、はめ殺し窓を指す場合もあります。

左図ははめ殺し窓を表す際に「FIX」を使った事例です。
右図は平面図上でコーナーのデットスペースを表現する際にFIXを使った事例です。
本来のFIXが表す意味と違うかもしれませんが内装設計ではこの表示を使う場合もあります。
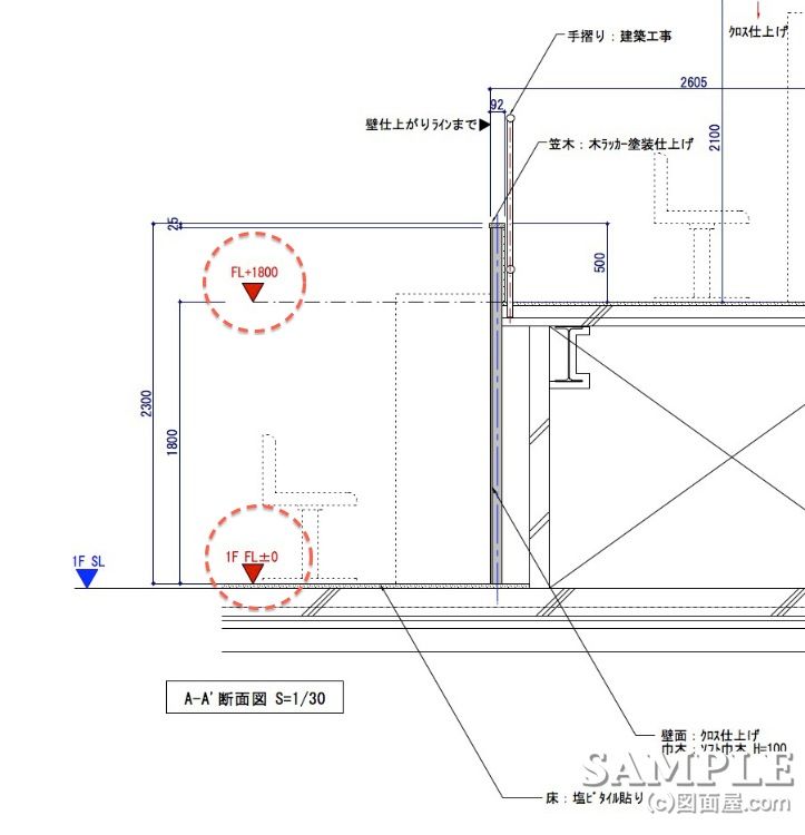
【FL】フロアレベル又はフロアライン(floor level又はfloor line)の略語で、
フロアの基準ラインを表します。
この基準ラインから床の仕上げ高さを示す場合にはFL+数値と表記します。
《例 フロアラインから100mm上がった床の場合はFL+100と表記します》

左図はフロア基準ラインを示す際に「1FL」,「2FL」と▼マークとで表記した事例で主に展開図や立面図で表記します。
右図はフロア基準から床の仕上げ高さを示す際に「FL±0」,「FL+1800」と表記した事例です。
【FR】
フィッティングルーム(Fitting Room)の略語で。「試着室」を示します。
【HGR】
ハンガーラック(Hanger Rack)の略語で、ハンガーパイプに掛けて陳列する什器の総称です。
【M】ミラー(Mirror)を示す略語です。
【SC】ショーケース(Show Case)を示す略語です。
【SH】棚(Shelf)を示す略語です。
【TA(T)】テーブル(Tabele)を示す略語です。
【R】レジスター(Cash Reister)の略語です。