システム什器の姿図と断面図|図面屋ま〜の "Easy Living" な日々

図面屋ま〜の "Easy Living" な日々

リタイヤした平凡な図面屋です。仕事から解放されて日々のんびり気楽に暮らしてます。そんな奴が好き勝手書いてます!

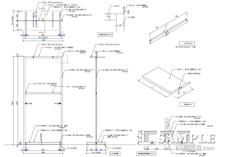
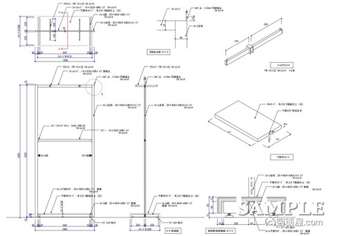
システム什器の姿図と断面図

HC什器図


■サイズ
■仕様
W1000×D500×H2250
図面参照 
 フレーム支柱:20×40スチール角パイプクロームメッキ仕上げ
 ステージ:木工化粧板仕上げ
■備考


この作図事例はシステム什器の姿図と断面図です。

一見シングルハンガーラックに見えますがセンター受けパーツを使ってフェイスアウトや棚陳列も可能なシステム什器です。

ただ売場の中央に配置するシステム什器としては高さがあるのでポイントとして配置するには十分ですね。

人気ブログランキングに参加していますので、
応援、宜しくお願い致します。
      
    
2013/05/24| コメント:0トラックバック:0Edit

コメントする

名前
 
  絵文字
 
 
Copyright © 図面屋ま〜の "Easy Living" な日々 All Rights Reserved.
当サイトのテキストや画像等すべての転載転用・商用販売を固く禁じます