壁面VP造作の姿図と断面図|図面屋ま〜の "Easy Living" な日々

図面屋ま〜の "Easy Living" な日々

リタイヤした平凡な図面屋です。仕事から解放されて日々のんびり気楽に暮らしてます。そんな奴が好き勝手書いてます!

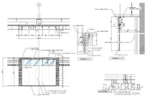
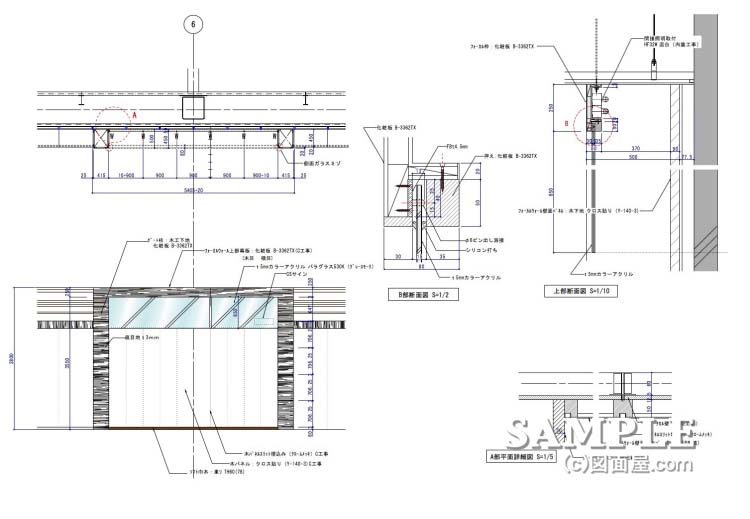
壁面VP造作の姿図と断面図

フォーカルウォール


■サイズ
■仕様
W5425×D500×H3800
図面参照 
 ゲート:木工化粧板仕上げ
 背板:木パネル下地クロス仕上げ
 幕板:t=5カラーアクリル 
■備考


この作図事例は壁面VP造作の姿図と断面図です。

木工の化粧柱と天蓋でゲートを作り、VPエリアを際立たせています。

上部にカラーアクリをサインベースとしてφ6mmのピンで引っ掛けて、後で裏面から押さえを固定します。

天蓋からの引っ掛けだけでは前後の揺れに対して弱いので化粧柱にも溝加工を施してガイドになるようにしました。

人気ブログランキングに参加していますので、
応援、宜しくお願い致します。
      
   
2013/06/21| コメント:0トラックバック:0Edit

コメントする

名前
 
  絵文字
 
 
Copyright © 図面屋ま〜の "Easy Living" な日々 All Rights Reserved.
当サイトのテキストや画像等すべての転載転用・商用販売を固く禁じます