
■サイズ
| ■仕様 |
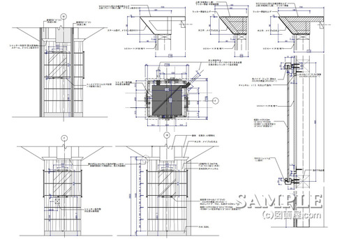
W1466×D1386×H2650 図面参照 | 柱:PB下地木目シート貼り 上部ボーダー:木工下地ラッカー塗装仕上げ |
■備考
|
この作図事例は百貨店の食品売場にある柱造作の姿図と断面図です。
フロアとしては食品売場が地下にある事が多いので、必然的に不燃仕様となります。
しかし、上部のボーダーは木工造作になっていますね。
装飾物扱いとして消防検査をパスする事もありますが、基本的には認められないのでご注意下さい。
柱は木目のシート貼りでコの字チャンネルを底目地に使用する良くある意匠となっています。
この場合下地をプラスターボードにしていますが、各出隅が綺麗に直角になるかがポイントとなります。
プラスターボードはご存じの通り、あらかじめ小口にV目地になるようにカットされています。
この上にそのままシートを貼ると下地の形がくっきりとでてしますので必ずパテ処理か、コーナー材を取り付ける事が必須となります。
工期を考え、最も手間を掛けない方法としてはケイカル板を下地に使う、或いはDボードと呼ばれるすでにシートが貼られている化粧ボードを使う事です。
ケイカル板はプラスターボードよりも固く小口もカットされていないので出隅の直角が綺麗に出てきます。ちょっとコストは上がりますが、手間と仕上がりを考えるとこちらの方が適していますね。
柱面に取り付けられているサインパネルの姿図と断面図が下記記事にありますので参考にして下さい。
⇒
サインパネルの姿図と断面図人気ブログランキングに参加していますので、応援、宜しくお願い致します。