
■サイズ
| ■仕様 |
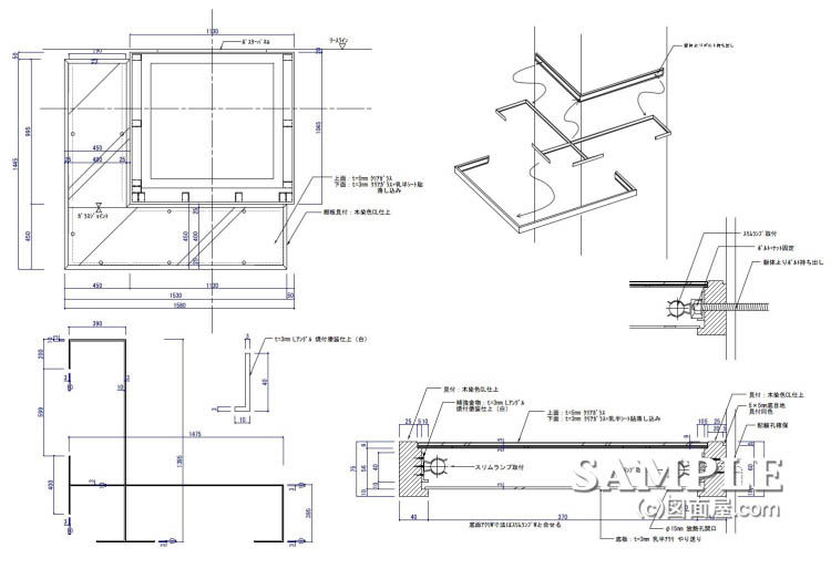
W1580×D1445×H75 図面参照 | 棚枠:木染色CL仕上げ 棚:t=5クリアガラス+t3乳半アクリ 下地フレーム:t=3スチールLアングル溶接組み |
■備考
|
この作図事例は柱巻き行灯棚の姿図と断面図です。
柱巻きの壁下地からボルトを持ち出して固定するようになっています。
残念ながらボルト持ち出し部分の詳細図がありませんが、今までのご紹介してきたインロー式固定棚と同じです。
この棚枠の取り付け方はスケッチを見て頂くと分かりやすくなっています。
注意点としては、下地フレームを固定するボルトの位置を明記しておく事ですね。
この事例では表現されていませんが、平面図に最低でも4箇所程ボルトを設置する必要があります。
このボルトの寄り寸法の指示がなければ、軽量鉄骨(LGS)を建てる位置も変わってきますので注意して下さい。
人気ブログランキングに参加していますので、応援、宜しくお願い致します。
この行灯棚の固定方法にはもう一つ注意すべき点があります。
それは昭明器具のシルエットが見えてしまう可能性があるところと熱抜き孔が無い点です。
図面上ではエースラインを使用していますが、かなり内部が狭いです。
これではいくら乳半アクリルを使っても、器具のシルエットが見えてしまいます。
現在ではLED照明があるので、さほどこの点が問題になる事はありません。
しかし、昭明器具をカバーして隠す工夫も必ず必要です。
器具と棚板トップとの距離を考慮して棚の見付け寸法を決める事がポイントとなります。
そして、熱抜き用の孔がこの図面上では設定されていないので、乳半アクリルが焼けてしまう可能性もあります。
柱側の枠に2箇所ぐらい開口を設けて熱を柱内に逃がす事が必要ですね。
行灯式のサインや固定棚を設計する場合は常にこの熱抜き処理の事も頭に置いておいて下さい。