
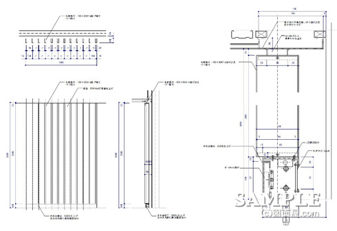
この図面は巾木にED間接照明を内蔵した化粧格子の詳細図です。
和風の店舗では良く格子を使う事も多いので、是非参考にして見て下さい。
納めのポイントはやはり巾木の部分で、照明器具をメンテする為に正面部分をボールキャッチで脱着式にしている所です。
イメージ画像提供元:タキゲン製造株式会社図面上で使っているものとは異なりますが、これがボールキャッチです。
裏面には乳半アクリルを固定しているのですが、壁面との距離が近いので外からビスで固定することができませんでした。
その為内部から固定するようになっています。
背面の壁仕様がミラーやガラスでない限り巾木裏面からビス先が映る心配はないのでこのままの状態でも問題ないでしょう。
尚、続きを読むにこの化粧柱をベースに応用した格子柱について書いていますので参照下さい。
応援、宜しくお願い致します。
↓ ↓ ↓
にほんブログ村
この化粧柱はスチール柱を上げ落とし式で収めていますが、このスチールをアクリワーロンに替えて、巾木内の照明でぼんやりと光らす事も工夫をすれば出来ます。


アクリワーロンとは簡単に言うと柄が入ったアクリル板ですね。
詳しくは下記のホームページをご覧ください。
⇒
株式会社ワーロン通常のアクリルより少しコストが掛かりますが、種類も豊富です。
何より、木目や石目などの表情が照明によって浮かび上がってくる点は演出にはピッタリですね。
このように素材を替えるだけでも全く違う意匠にもなり得るのでいろいろ試して見て下さい。
応援、宜しくお願い致します。
↓ ↓ ↓
にほんブログ村 