■Data
|
| ■サイズ | ■仕様 |
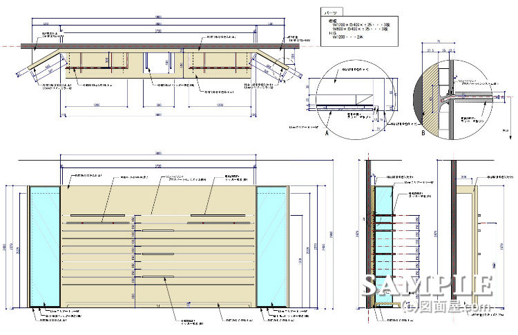
4900×500×2370
| パネル部:栓材(板目染色CL仕上) システム:ワンバイワン:プロスパーライン |
■備考 |
店舗の壁面には必ずと言ってシステム什器が配置されます。
ただ、壁面の面積がやたらと大きく、幅がある店舗ではお客さんはきっと途中で買い物意欲なくなります。
何故なら、「だれるからです」
やはり店舗というのはショッピングを楽しみ夢を売る場所だからです。
そんなだれた売り場をこのようなシステムでありながらVPポイントを明確に見せる什器が必要とされます。
応援、宜しくお願い致します。
↓ ↓ ↓
にほんブログ村 
人気ブログランキング
この店舗は、ブランド専門店だったと記憶しますがやはり、壁面には見せ場が必要です。
この什器は。「ワン・バイ・ワン」というシステムを使用するため、従来のスリットを使用するよりこるとアップします。
ですから、すべての壁面には必要性を感じませんが、壁面のポイントつぃての構成なら「あり」ですね。
什器自体もマテリアルを変えてやることで、テイストの違った店舗でも成り立つと考えられます。
ちょっと変化をつけて使うのも得策ではないでしょうか。 ただ、サイドにあるミラーはすべてに当てはまらないので、再考案の余地があります。
※一例ですがハンガーパイプを1本のアームで支持している商品です。当時は、このシステムがかなりインプレッションが多く、何処の百貨店を見ても「あっちにもこっちにも」って感じでちょっとしつこいなともおもいました。

※これも一例ですが、こういった使い方もあります。尚、拡大詳細図を添付しておきます!

いつも私は言うように、店舗での商品は「置く」「吊す」「掛ける」の三要素をうまく演出できる店舗デザイナーこそ誰にでも喜ばれる設計者と考えます。
図面が掛けるだけではだめです。
初心者のかたは出来れば、図面を描く前にスケッチから理解し、商品の良さをいかに演出するかを考える方が良いでしょう。
今は、設計者は確実に減っています。
ですから、あなたにも多くのチャンスがありますので、店舗デザイナーを目指す人はこのあたりをしっかり理解してください。
応援、宜しくお願い致します。
↓ ↓ ↓
にほんブログ村 
人気ブログランキング