リタイヤした平凡な図面屋です。仕事から解放されて日々のんびり気楽に暮らしてます。そんな奴が好き勝手書いてます!

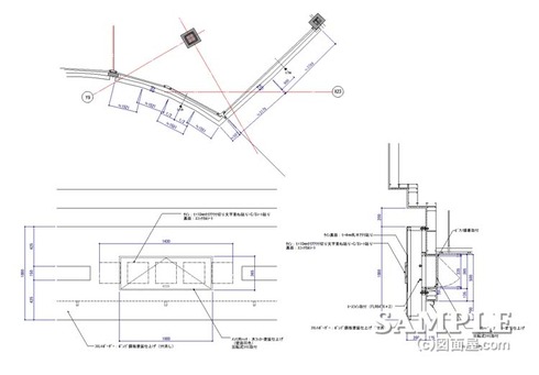
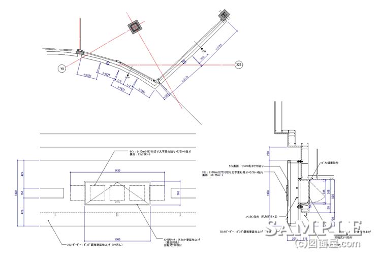
| ■Data NO. sign_019 | ||
| ■サイズ | ■仕様 | |
| ≒6100×325×1000 ≒7000×325×1000 | ベース:ボンデ鋼板+塗装仕上げ | |
| ■備考 このサインは垂れ壁にメンテ用BOXを埋め込んで照明器具の取り替えを行えるようにしています。 | ||
当時は、LEDの普及がままならない状態だったので光源は、スリムライトを使用しています。
ま〜
図面屋ま〜では、若き同業者の方々のお役に立てるよう、今まで描き続けてきた図面資料やデザイン資料などをお伝えしております。 ただ、掲載している作図資料はあくまで資料であり、全ての店舗や施工に当てはまるものではありません。ですから、参考程度の資料とお考えください。
Powered by ライブドアブログ