
こんにちは、通称ぼん太です。
最近、このお仲間に入れて頂きました。
出来の悪い図面ばかり描いている僕を見て、管理人さんがこのサイトで勉強しては・・・・。
といって、参加させて頂きました。
ここでは、僕の過去の経験談や失敗談をお話しします。
また、諸先輩方に教えて頂いた濃〜いノウハウを「虎の巻」と称して、みなさんに伝えようかと考えています。
応援、宜しくお願い致します。 ↓ ↓ ↓
にほんブログ村 
人気ブログランキング
図面を描いて、はや10年を過ぎようとしてますがまだまだ、怒られる立場です。
今回は、照明等についてをお伝えしていこうと考えました。
照明といっても様々な箇所に使われていますので、順を追ってご紹介してきます。
僕もそうなんですが、苦手な行灯等の照明についてお伝えします。
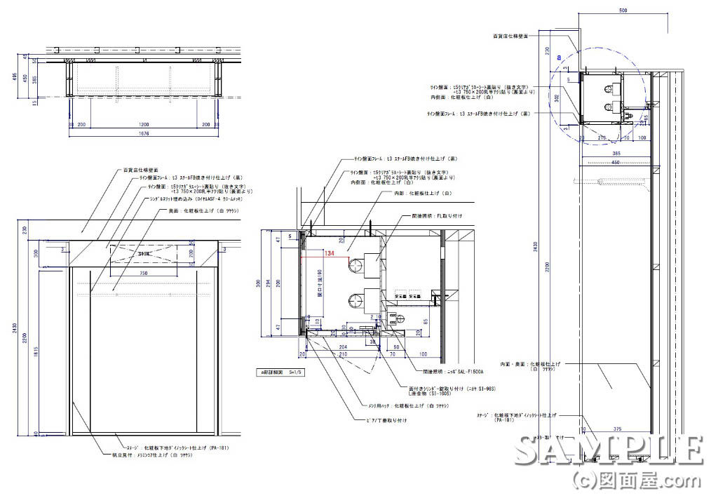
この図面は、以前に管理人さんの教えを受けながら描いた壁面のシステム什器図です。
上部に行灯サインの照明(FLトラフ)を2灯とエースラインを間接照明として取り付けています。
ここで言いたいのは、行灯部の照明とサイン盤面の寸法が、当時の僕にはすぐには決定できませんでした。(泣)
行灯内部の寸法をどれだけ確保すれば、適切なのか!が難しい。そこで第1回「虎の巻」登場です。
過去の僕の経験値では、よく失敗しました。
それから現場入りの際に各売り場に忍び込んで、その実績値を図ってみたのです。
ある程度は、理解する事が出来ましたが、作図となるとちょっと緊張します。
管理人さんに確認すると、基本的には光源から
80mm〜100mmを確保すれば、失敗知ることはないだろうと!
某百貨店の施工図面を描く折に、この寸法で表記しました。
その後、竣工してからげんんばで確認!
するとサイン部の盤面に、照明器具の影が写り込む事はありませんでした。
ですから内照式のボーダー等の図面を描かれる場合は、この寸法を参考にして頂ければ良いでしょう。
以上です。
ぼん太でした。
応援、宜しくお願い致します。 ↓ ↓ ↓
にほんブログ村 
人気ブログランキング