
こんにちは 凛です。昨日の続きですが、先回の作図はご理解頂けたでしょうか_
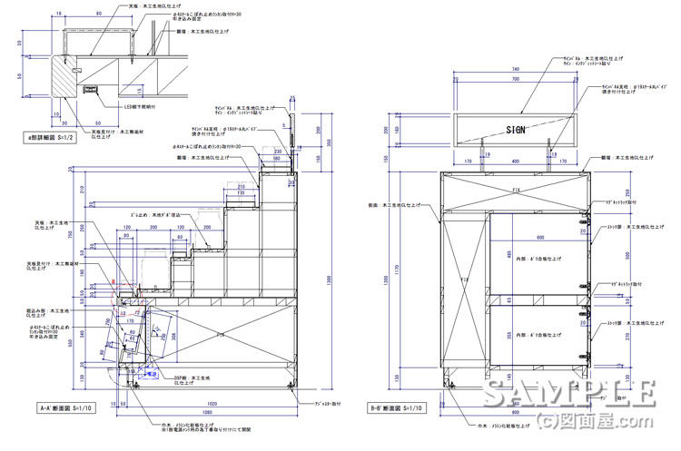
今日は、その詳細図です。
昨日はそれほど仕事が無かったので、ちょちょいと描いてしまいました。
詳細図と行っても、縮尺を拡大するだけですから時間はかかりませんでした。
邪魔くさいのは、細かい寸歩記入とこぼれ止めのランカン詳細図ぐらいです。
ランカンはたぶん既製品で処理しました。
応援、宜しくお願い致します。 ↓ ↓ ↓
にほんブログ村 
人気ブログランキング
特に、腰部のディスプレー棚 の寸法は、展示される商品を想定してシビアに入れました。
もちろん、角度も大切です。
ひな壇の奥行きに関しては、展示する商品に酔っても異なります。
ここではリサーチしたお店を忠実に再現したつもりです。
最近、いろいろな食品売場をリサーチして面白いことを発見しました。
実はこの腰部の利用が、名前は違えど、あちこちの食品スーパーで発見!
みんさん、ご苦労なさっているのですね!
何かを生み出すことは、やはり売場の声です。努力です。
この什器を見て思ったことなんですが、やはりこれからも、切磋琢磨ってことなんですね。
何か教えてもらったような気分です。
尚、リサーチの際の写真が出てきましたので、添付しておきます。
応援、宜しくお願い致します。 ↓ ↓ ↓
にほんブログ村 
人気ブログランキング