リタイヤした平凡な図面屋です。仕事から解放されて日々のんびり気楽に暮らしてます。そんな奴が好き勝手書いてます!

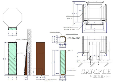
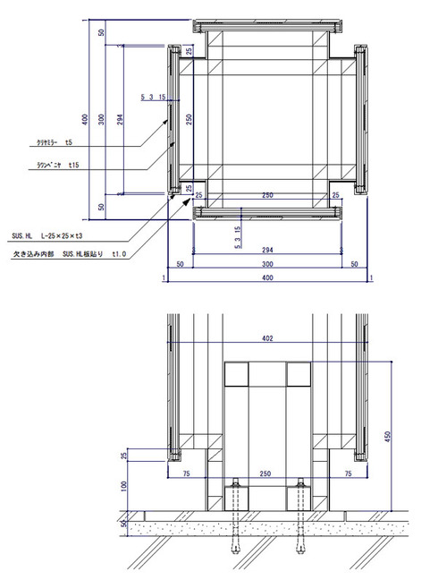
| ■Data | ||
| ■サイズ | ■仕様 | |
| 図面参照 | 図面参照してください。 | |
| ■備考 | ||
これは、メーカー名であって多くの額縁を扱っているようです。参考までに下記参照!
⇒ ラーソンジュール
その他は、特に他の姿見との差別化はあまり感じられません。
応援、宜しくお願い致します。
↓ ↓ ↓
にほんブログ村
![]()
人気ブログランキング

ま〜
図面屋ま〜では、若き同業者の方々のお役に立てるよう、今まで描き続けてきた図面資料やデザイン資料などをお伝えしております。 ただ、掲載している作図資料はあくまで資料であり、全ての店舗や施工に当てはまるものではありません。ですから、参考程度の資料とお考えください。
Powered by ライブドアブログ