
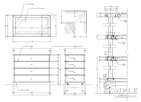
| ■Data |
| ■サイズ | ■仕様 |
W1500×D850×H1200 図面参照 | 本体:ナラ材染色仕上げ 金物:STパイプφ31古美色風メッキ仕上げ |
■備考
|
汎用性を感じるオープン什器の図面事例をご紹介していますが、これはかなり昔のものですね!
確か、「ヘンリーコットン」っていうブランドの什器だと記憶しています。
たぶん、10年以上、いやもっと過去のものでしょう。(笑)
こんにちは、余田和です。
当時は今と違って古き良き時代でしたね。化粧板なんてほとんど見ることもなく使う必要も無かった時代ですから!
応援、宜しくお願い致します。 ↓ ↓ ↓
にほんブログ村 
人気ブログランキング
ただ、高くつくのでクライアントは嫌がったようです!
しかし、やはり本物素材って雰囲気は出るしね、触っても暖かさが伝わり店格がかなり上がります。
今では、何でもかんでも化粧板仕上げで雰囲気も合ったものではありません。
さて機能的について少々!
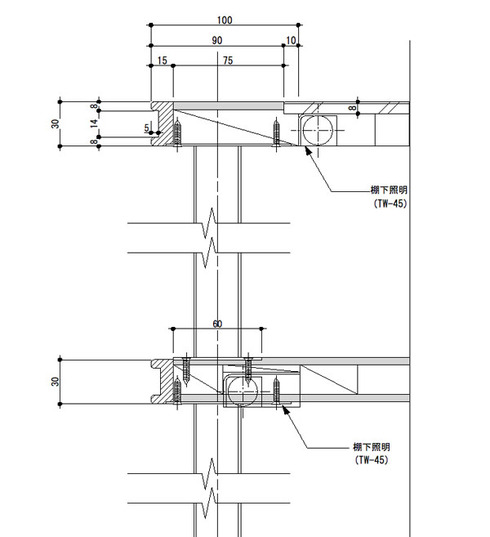
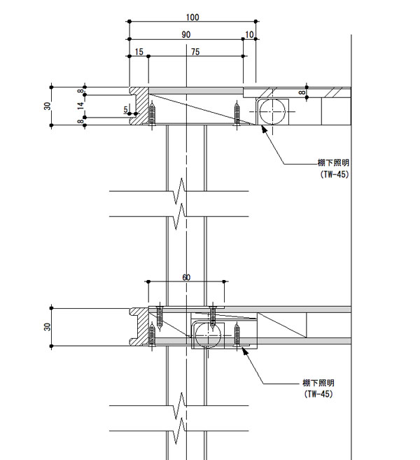
什器自体は、棚固定式で棚下照明を取り付けていますが、ちょっと注意して欲しいところを発見しました。

というのも、断面を見れば分かりますが、全てビス止めでの固定です。
ちょっと怖いですね!
また、この程度の収め方だと自重はあるとはいえ、長く使っていると什器の横揺れは免れないことでしょう。
まあ、木工屋さんもこれじゃだめって感じて、それなりに作ってはくれますが図面的には考え物ですね!
「誰や、これ描いたの!」って言ってやりたい気持ちです。
ここで、ちょっと別の収めも添付しておきますので参考にしてください!!

この方がしっかり止めることが出来ますね!!何かご質問があればお問い合わせください。
それでは!
応援、宜しくお願い致します。 ↓ ↓ ↓
にほんブログ村 
人気ブログランキング