
| ■Data |
| ■サイズ | ■仕様 |
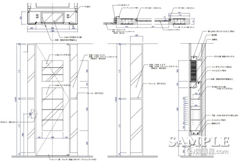
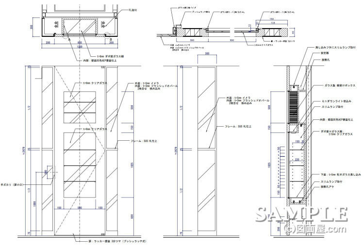
| WxD×Hは、図面参照 | 建具:木下地ラッカー塗装仕上げ SW:t=6mmクリアガラスFIX |
■備考
|
店舗を設計する上で邪魔なのが、柱です。
長い間の設計人生で幾度となく悩まされた嫌な物体でもあります。
ただ、まれにですが、柱があって助かったなんてことも、たまにありましたね。
今回の図面事例が、まさにそれでして・・・・。
応援、宜しくお願い致します。 ↓ ↓ ↓
にほんブログ村 
人気ブログランキング
ただ店舗全体の環境は、資料が見当たらないので申し訳ありません。
実は、設計段階で商材が追加されたんですね!
それで急きょ、店内でどこに追加商材であるアクセを演出しようかと問題になりました。
それから、クライアントと長時間協議した結果、この柱に落ち着いたという、何とも情けない話です。
店内中央部にあった柱をディスプレーを施した意匠柱として演出を試みました。
結果は、納得できるほどには至りませんでした。
が、オープン後は人集りまでとはいかないまでも、集客に役だったようです。
やはり、光というか>?間接照明を使ったことは、アイキャッチャーのはなりますね!
機能としては、演出面を2段に分けて、MDを展開するようにしました。
商品の入れ替えについては、1枚の大きな建具にクリアガラス(ウインド)をFIXしたもので行います。

ですから、ショップのスタッフでも容易に扱うことが出来ると好評!
この図面には管理用の錠がついていませんが、最終図面にはクライアントの要望もあって付けました。
詳細図も添付も添付しておきます。


※これはおまけです。
以上、余田和でした。
応援、宜しくお願い致します。 ↓ ↓ ↓
にほんブログ村 
人気ブログランキング