
| ■Data |
| ■サイズ | ■仕様 |
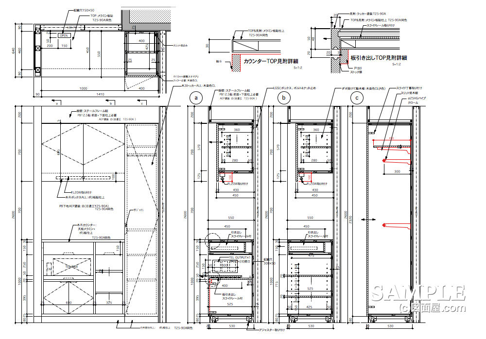
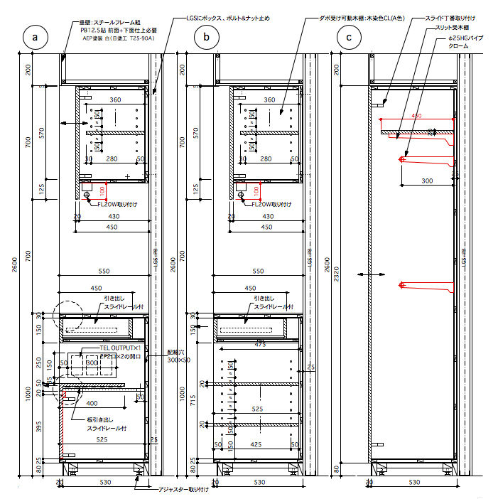
W1400xD640×H2600 図面参照 | 本体:木下地化粧板仕上げ
|
■備考
|
狭いスペースを利用した
オペレーションハイカウンターの姿図面とその断面詳細図です。
お客様にはほとんど接点はありませんが、ここで働くスタッフには無くてはならない機能です。
この場合は、商業ビルや百貨店のテナントの多く見受けられますが、レジの機能は無いにしろテナント本部とのコミュニケーション機能など(FAX)に使われます。
その他、店舗での必需品収納や、お客様の取り置き及び、お直し商品の収納スペースに使用されます。
では機能面について詳しく説明しましょう。
応援、宜しくお願い致します。 ↓ ↓ ↓
にほんブログ村 
人気ブログランキング
天地いっぱいでの
オペレーションハイカウンターですが、本来はこんなに高く造作することは、まずあり得ません。
※それぞれの機能が整然と整理されています。店舗クライアントからのリクエストで、このようなかたちになったと感じます。何しろ最近のテナントはバックストックや雑品の収納にも困ると聞きますから・・・・・。
ただ、天袋を使用するにはちょっと不便なような気がしますが、ここもあまりスペースですから使わない手はありません。
私的には結構うまく構成できたと感じます。
最後にカウンタートップと、a断面での引き出し棚の詳細を加えておきます。また、その他
オペレーションカウンターについては、このサイトで検索してみてください。

応援、宜しくお願い致します。 ↓ ↓ ↓
にほんブログ村 
人気ブログランキング