| ■Data |
| ■サイズ | ■仕様 |
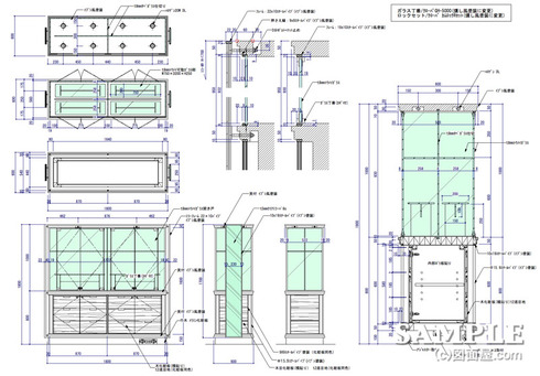
W1800×D600×H18000
| SC:t8mmトウメイ可動ガラス棚 木部:木化粧板(横貼り)底目地(化粧板色) |
■備考
|
ちょっとまとまりのない図面で申し訳ないですが、作図的には精度があって感心しています。
我がスタッフですが、誰が描いたかは解りません。きっと余田和さんでしょう!
さて、形状を見れば一目瞭然ですが、百貨店でよく見られるアクセサリーケースの代表例みたいな什器です。
応援、宜しくお願い致します。 ↓ ↓ ↓
にほんブログ村 
人気ブログランキング
什器高が、1800mmもあるんでメンズ売り場での展開什器だと感じますが、仕様は至ってシンプルな作りです。
アクセサリーと行っても、今は種類も多いので、普段見るレディースのそれと思われがちですが、いろいろ有りまして、カテゴライズするのは大変です。
親切なのは、什器の両サイドにミラーパネルを設置しているところですね!
この什器の使い道としては、本来は両面使用となっていますが、片面対応でも充分に対応出来ると考えら得ますね。
ただ壁面だと、もうちょっと什器高有ればいいですね!
図面を勉強されている人が、最初に悩むのはガラスと木のからみですのでそれぞれの詳細図を載せておきます。
最初は大変難しく感じますが、早くなれることをおすすめします。

ショーケースの収めは大概がこんな感じですので、しっかり覚えて下さい!
まずは、ガラスFIXから、それからガラスの開き戸等々と何種類かはありますが、基本は全て同じです。
このサイトでも、多くの記事を載せていますので勉強して下さい!
最後の腰部の詳細も・・・・・。

それでは、管理人より
応援、宜しくお願い致します。 ↓ ↓ ↓
にほんブログ村 
人気ブログランキング