
■Data
|
| ■サイズ | ■仕様 |
W×D×H 図面参照 | 壁面:ウォールナット柾目染色CL仕上げ その他:t=5mmミラー貼り |
■備考
|
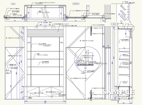
こちらの図面は、高級アパレルショップの壁面造作の図面事例です。
多くの要素が詰まった図面と思われますが、これを見て理解いただけますか>?
まず、壁面全面ミラー貼りでの建具の取り合いと、その収まり。
それにこれは参考になるか解りませんが、壁面棚上部のガラリもきっと何かの役に立つはずです。
この図面、経験値のある人ならOKでしょうが、初心者の方はちょっと理解に苦しむかもしれません。
でも、しっかり図面を見ていくといくとあなたにも解るはずです。
応援、宜しくお願い致します。 ↓ ↓ ↓
にほんブログ村 
人気ブログランキング
ここでの壁面構成は、2つの建具の間に商品陳列する棚を設けていますが、これはFRとストックルームの建具となります。
平面図が無いのでちょっと苦しい気もしますが、想像して理解してください。
私的には、旨く収めたつもりですが、とてもとても悩とてもみました。特に右のドアあたりの納めは苦労しましたね!
おかげで、管理人からはお褒めの言葉をいただきました。すばらしいって言ってました。
これといったデザイン性はありませんが、高級アパレルショップに相応しい出来だと感じています。
是非、壁面造作の事例としてお勉強してみてください!
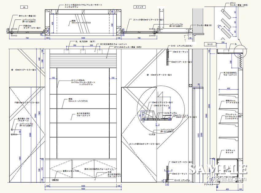
その他、詳細のところを拡大しておきましたので理解してください!!


上記は、向かって右の建具の詳細図です。

こちらも参考にしてください。
余田和でした。
応援、宜しくお願い致します。 ↓ ↓ ↓
にほんブログ村 
人気ブログランキング