
| ■Data |
| ■サイズ | ■仕様 |
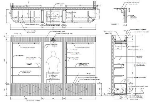
W3200xD500×H2280 詳細は図面参照 | 本体:リブ20角ニヤトー染色CL @20取付 |
■備考
|
トラッドショップで一時期人気を博し、年配の方なら誰もが一度はあこがれたショップブランドです。
2001年に描いた図面ですが、このフォーカルポイントととなる什器はよく出来ています。
商品の着想感を選出して、その両サイドで商品を販売するって格好です。
売る方も買う方も、明確のがいいですね!実際の売り上げも良かったようです。
応援、宜しくお願い致します。 ↓ ↓ ↓
にほんブログ村 
人気ブログランキング
そんなことから、あちこちの店舗でも真似られたようで、街中ではよく目にしました。
日本人は、ほんの真似るのがお上手ですね!!
また、トラッドということで什器自体もかなり重厚なつくりとなり、高級品が漂います。
仕上げが、リブ20角のニヤトーの材を @20取付して、染色CLという丁寧なしつらえです。
17年の今でも、ちょっと味付けすれば十分に通用することと感じますが、如何でしょう。
図面的には、それほどややこしいカ所は感じられませんが、こんな壁面什器もあるんだなって思っていただければ良いでしょう。
知ってて損は無いでしょうし、あなたの引き出しが引き出しがひとつ増える程度でもいいでしょう。
ここはポイントなんですが、
百貨店などでは、スペースがない中でのレイアウト変更や、商品陳列などが多いので、以下のような「置式ストック」を使用することが多いようです。

最後に、
ニヤトーについて

「木材図鑑」より引用応援、宜しくお願い致します。 ↓ ↓ ↓
にほんブログ村 
人気ブログランキング