
先回の投稿はフィッティングルーム(以後FR)でしたが、FR に必要なのが扉ですが、今回はもっと簡易な、カーテン仕様をお伝えします。
施工方法は、至って簡単です。
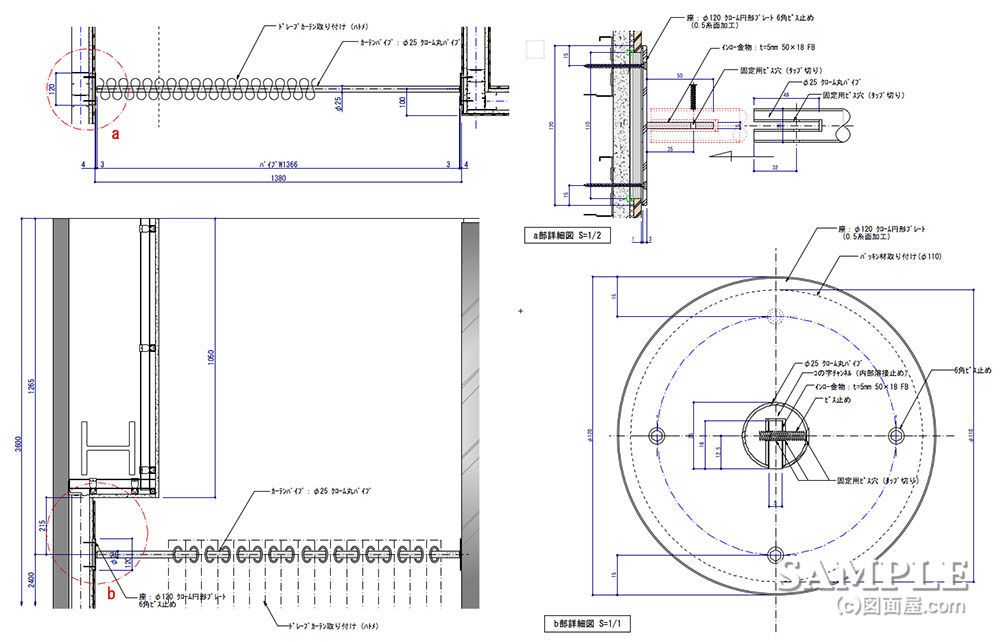
壁面にΦ120mm の座を取り付け後、ドレープカーテンをハンガーパイプに通して取り付け終了です。
ただ、ちょっと収めがややこしいのとやっかいなリクエストがあったのです。
これって施工屋泣かせ?
応援、宜しくお願い致します。 ↓ ↓ ↓
にほんブログ村 
人気ブログランキング
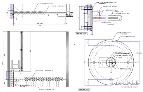
実は、図面事例をよくご覧ください。
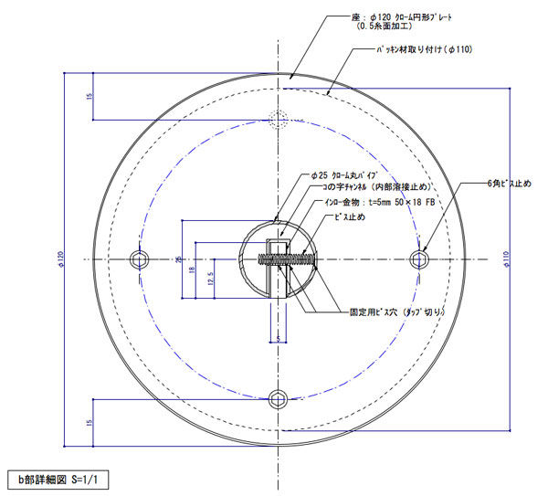
この収めちょっとやっかいと思いません?
ロイヤルで処理すればもっと簡単なのですが、お偉い先生が考えたのが以下に!

座にインロウ金物つけて、それに加工パイプを引っ掛けてビス固定!
わからんでもないが、これじゃコストかかって仕方がありません。
加工パイプなんか製作上かなりややこしくて、Φ25mmを最低Φ30mm程度にしなきゃね!
まあ、ビスを取ればカーテン替えは簡単なのですが、まあ、いろいろ考える人っていますね。
最後にそのやっかいな断面図を載せておきますね!

本日は祭日あって、仕事はお休ですが喧噪から逃れるために京都の山奥を探索してきましょう。
余田和でした!
応援、宜しくお願い致します。 ↓ ↓ ↓
にほんブログ村 
人気ブログランキング