
■サイズ
| ■仕様 |
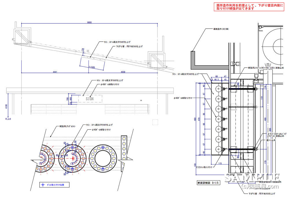
W1580×D176×H480 その他は図面参照 | サイン:スチール箱文字クロカワ仕上げ+φ40ボール球取り付け
|
■備考
|
店頭サインは、ショップにはとても大切なメッセージでもありますので、インパクトのあるサイン表示が好ましいと考えます。
今回は、まさにそのインパクトは絶大です。そんなサインの図面事例をご紹介しましょう。
Φ40mmのボール球は、ちょっと目には苦しいでしょうがカジュアルショップでは良いかもしれません。
それでは詳しくいきましょう! 応援、宜しくお願い致します。 ↓ ↓ ↓
にほんブログ村 
人気ブログランキング

店頭の環境垂れ壁に、直接ボール球を付けた個々のアルファベットベースをボルトで取り付けています。
ここで注意することは、事前に垂れ壁無いにスチールの補強材を忍ばせておきます。
やはり重量が気になりますからね!
取り付けは、墨出しをしっかりしてれば問題なく収まります。
断面図も添付しておきますので、理解もたやすいでしょう。
ただ、図面から見ると店内側から固定用の化粧ナットの頭が見えてくるのはちょっとまずかったかもしれませんね。

慌てて描くとよくこういう間違いがあります。
まわりの環境が、「見えていない」のですね。
一部分の詳細図を描くときは、特に廻りがどういう状況なのかと言うことを絶えず把握することが肝心です。
応援、宜しくお願い致します。 ↓ ↓ ↓
にほんブログ村 
人気ブログランキング