■サイズ
| ■仕様 |
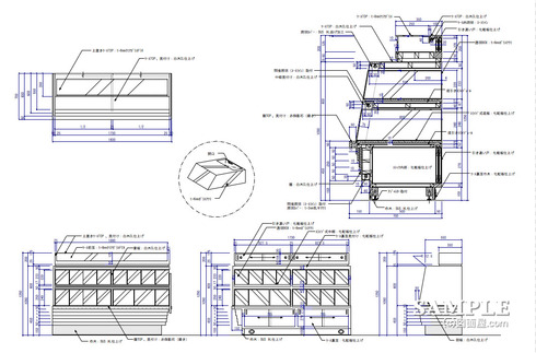
W1800×D700×H1250 図面参照 | 本体:化粧板仕上げ 一部:白木CL仕上げ ケース:t=8mmガラスFIX |
■備考
|
ショーケースをいくつも描いてきましたが、今回はちょっと特殊な図面事例をご紹介しましょう。
これは、デパ地下での売場無いに配置された和菓子コーナーの什器です。
腰があって、ショーケースを積み上げるまでは、他のそれと違いはありませんが、和菓子、それも豆類となるとちょっと扱いが違ってきます。
断面図を見ればそれが理解できると感じますが、ちょっと参ってしまうでしょ!
では、続きを!応援、宜しくお願い致します。 ↓ ↓ ↓
にほんブログ村 
人気ブログランキング
このショーケース、私的には仕上げ等はどうでも良くて唯々、収めについてはかなり苦労しました。
トップの付属ケースは別として、2段に構えられた可動式のボックスケースの作図は大変でした。
真ん中に位置するスケッチが、ひとつひとつのケース(豆お菓子が入る)になってそれが引き出しで可動するって代物です。
上段で8ボックス、下段では7ボックスの構成です。
そのそれぞれに、底引きレールを取り付けるといった内容ですが、ご理解いただけますか?
説明するより、実際に描いていく方が楽かもしれません。
まあ、そんなこんなで描き上げた苦労作品です。
見てくれは良くありません。ただ、豆菓子を売るだけなのですね!
尚、断面図の拡大バーション載せておきます。
一度、時間をかけて理解するのも良いでしょう!

頑張って!
応援、宜しくお願い致します。 ↓ ↓ ↓
にほんブログ村 
人気ブログランキング